ՀԱՅԱՍՏԱՆԻ ՀԱՆՐԱՊԵՏՈՒԹՅԱՆ ԿԱՌԱՎԱՐՈՒԹՅՈՒՆ
Ո Ր Ո Շ ՈՒ Մ
13 ապրիլի 2023 թվականի N 538-Ն
ԳԱԶԱՍՊԱՌՄԱՆ ՀԱՄԱԿԱՐԳԵՐԻ ԱՆՎՏԱՆԳՈՒԹՅԱՆ ԵՎ ՇԱՀԱԳՈՐԾՄԱՆ ԿԱՆՈՆՆԵՐԸ ՀԱՍՏԱՏԵԼՈՒ ՄԱՍԻՆ
Ղեկավարվելով «Էներգետիկայի մասին» Հայաստանի Հանրապետության օրենքի 5.1-ին հոդվածի 2-րդ մասի «բ» ենթակետով՝ Հայաստանի Հանրապետության կառավարությունը որոշում է.
1. Հաստատել գազասպառման համակարգերի անվտանգության և շահագործման կանոնները՝ համաձայն հավելվածի:
2. Սույն որոշումը պաշտոնապես հրապարակվում և ուժի մեջ է մտնում 2023 թվականի ապրիլի 23-ից։
|
Հայաստանի Հանրապետության վարչապետ |
Ն. ՓաշինՅԱՆ |
|
Երևան |
|
17.04.2023 ՀԱՎԱՍՏՎԱԾ Է ԷԼԵԿՏՐՈՆԱՅԻՆ ՍՏՈՐԱԳՐՈՒԹՅԱՄԲ |
|
Հավելված ՀՀ կառավարության 2023 թվականիապրիլի 13-ի N 538-Ն որոշման |
ԳԱԶԱՍՊԱՌՄԱՆ ՀԱՄԱԿԱՐԳԵՐԻ ԱՆՎՏԱՆԳՈՒԹՅԱՆ ԵՎ ՇԱՀԱԳՈՐԾՄԱՆ ԿԱՆՈՆՆԵՐ
ԲՈՎԱՆԴԱԿՈՒԹՅՈՒՆ
ԲԱԺԻՆ 1. ԸՆԴՀԱՆՈՒՐ ԴՐՈՒՅԹՆԵՐ
ԳԼՈՒԽ 1. ԿԻՐԱՌՄԱՆ ՈԼՈՐՏ
ԳԼՈՒԽ 2. ՀԱՍԿԱՑՈՒԹՅՈՒՆՆԵՐԸ ԵՎ ՀԱՊԱՎՈՒՄՆԵՐԸ
ԳԼՈՒԽ 3. ԲԲ ՇԵՆՔԵՐԻ, ԲՆԱԿԱՐԱՆՆԵՐԻ, ԱՌԱՆՁՆԱՏՆԵՐԻ ԵՎ ԿԵՆՑԱՂԱՅԻՆ ՆՊԱՏԱԿՆԵՐՈՎ ԳԱԶԱՕԳՏԱԳՈՐԾՈՂ
ԿԱԶՄԱԿԵՐՊՈՒԹՅՈՒՆՆԵՐԻ ԳԱԶԱՍՊԱՌՄԱՆ ՀԱՄԱԿԱՐԳԵՐԻ ԱՆՎՏԱՆԳՈՒԹՅՈՒՆ
ԳԼՈՒԽ 4. ԳԱԶԱՍՊԱՌՄԱՆ ՀԱՄԱԿԱՐԳԵՐԻՆ ԱՌԱՋԱԴՐՎՈՂ ԱՆՎՏԱՆԳՈՒԹՅԱՆ ԸՆԴՀԱՆՈՒՐ ՊԱՀԱՆՋՆԵՐԸ
ԳԼՈՒԽ 5. ԳԱԶԱՍՊԱՌՄԱՆ ՀԱՄԱԿԱՐԳԵՐԻ ԵՎ ԳԱԶՕԳՏԱԳՈՐԾՈՂ ՍԱՐՔԵՐԻ ԿԻՐԱՌՄԱՆ ՍԱՀՄԱՆԱՓԱԿՈՒՄՆԵՐԸ ԲԲՇ-ՈՒՄ
ԳԼՈՒԽ 6. ԲԲՇ-ՆԵՐԻ, ԱՌԱՆՁՆԱՏՆԵՐԻ ԵՎ ԿԱԶՄԱԿԵՐՊՈՒԹՅՈՒՆՆԵՐԻ ԳԱԶԱՍՊԱՌՄԱՆ ԳԱԶԱՏԱՐԵՐԻ ՏԵՂԱԿԱՅՄԱՆՆ ԱՌԱՋԱԴՐՎՈՂ ՊԱՀԱՆՋՆԵՐԸ
ԳԼՈՒԽ 7. ՓԱԿԱՆՆԵՐԻՆ, ԿՑԱՄԱՍԵՐԻՆ, ԱԶԴԱՆՇԱՆՄԱՆ ՍԱՐՔԵՐԻՆ, ՀԱՇՎԱՌՔԻ ՍԱՐՔԵՐԻՆ ԵՎ ԴՐԱՆՑ ՏԵՂԱԿԱՅՄԱՆՆ ԱՌԱՋԱԴՐՎՈՂ ՊԱՀԱՆՋՆԵՐԸ
ԲԱԺԻՆ 2. ԳԱԶԻ ՍԱՐՔԵՐԻ ՏԵՂԱԿԱՅՄԱՆԸ ՆԵՐԿԱՅԱՑՎՈՂ ԱՆՎՏԱՆԳՈՒԹՅԱՆ ՊԱՀԱՆՋՆԵՐԸ
ԳԼՈՒԽ 8. ԸՆԴՀԱՆՈՒՐ ՊԱՀԱՆՋՆԵՐ
ԲԱԺԻՆ 3. ԳԱԶԻ ՍԱՐՔԵՐԻ ՏԵՂԱԿԱՅՄԱՆ ՍԵՆՔԵՐԻՆ ԱՌԱՋԱԴՐՎՈՂ ՊԱՀԱՆՋՆԵՐԸ
ԳԼՈՒԽ 9. ԸՆԴՀԱՆՈՒՐ ՊԱՀԱՆՋՆԵՐ
ԳԼՈՒԽ 10. «Ա» ՏԻՊԻ ԳԱԶԻ ՍԱՐՔԵՐԻ ՏԵՂԱԿԱՅՄԱՆ ՍԵՆՔԵՐԸ
ԳԼՈՒԽ 11. «Բ» ՏԻՊԻ ԳԱԶԻ ՍԱՐՔԵՐԻ ՏԵՂԱԿԱՅՄԱՆ ՍԵՆՔԵՐԸ
ԳԼՈՒԽ 12. «Ց» ՏԻՊԻ ԳԱԶԻ ՍԱՐՔԵՐԻ ՏԵՂԱԿԱՅՄԱՆ ՍԵՆՔԵՐԸ
ԲԱԺԻՆ 4. ԳԱԶԻ ՍԱՐՔԵՐԻ ԾԽԱՕԴԱՏԱՐ ԵՎ ԾԽԱՏԱՐ ՀԱՄԱԿԱՐԳԵՐԻՆ ԱՌԱՋԱԴՐՎՈՂ ՊԱՀԱՆՋՆԵՐԸ
ԳԼՈՒԽ 13. ԳԱԶԻ ՍԱՐՔԵՐԻ ԾԽԱՕԴԱՏԱՐ ԵՎ ԾԽԱՏԱՐ ՀԱՄԱԿԱՐԳԵՐԻ
ԴԱՍԱԿԱՐԳՈՒՄԸ
ԳԼՈՒԽ 14. ԸՆԴՀԱՆՈՒՐ ՊԱՀԱՆՋՆԵՐԸ
ԳԼՈՒԽ 15. «Բ1» ԵՎ «Բ11» ԵՆԹԱՏԻՊԻ ԳԱԶԻ ՍԱՐՔԵՐԻ
ԾԽԱՏԱՐ ՈՒՂԻՆԵՐԸ
ԳԼՈՒԽ 16. «Ց» ՏԻՊԻ ԵՎ «Բ13», «Բ22», «Բ23» ԵՆԹԱՏԻՊԵՐԻ ԳԱԶԻ ՍԱՐՔԵՐԻ ԾԽԱՏԱՐ ԱՆՑՈՒՂԻՆԵՐԸ
(ԾԽԱՕԴԱՏԱՐՆԵՐԸ)
ԳԼՈՒԽ 17. «Ց» ՏԻՊԻ ԳԱԶԻ ՍԱՐՔԵՐԻ ԵՎ «Բ13», «Բ22», «Բ23» ԵՆԹԱՏԻՊԵՐԻ ԳԱԶԻ ՍԱՐՔԵՐԻ ԾԽԱՏԱՐ ՈՒՂԻՆԵՐԸ (ԾԽԱՕԴԱՏԱՐՆԵՐԸ)
ԳԼՈՒԽ 18. ՆԵՐՏՆԱՅԻՆ ԳԱԶԱՍՊԱՌՄԱՆ ՀԱՄԱԿԱՐԳԻ ՏԵԽՆԻԿԱԿԱՆ ՍՊԱՍԱՐԿՈՒՄ
ԳԼՈՒԽ 19. ԱՎՏՈՄԱՏ (ԻՆՔՆԱՇԽԱՏ) ԱՆՎՏԱՆԳՈՒԹՅԱՆ ՀԱՄԱԿԱՐԳԻՆ ՆԵՐԿԱՅԱՑՎՈՂ ՊԱՀԱՆՋՆԵՐԸ
ԲԱԺԻՆ 1. ԸՆԴՀԱՆՈՒՐ ԴՐՈՒՅԹՆԵՐ
ԳԼՈՒԽ 1. ԿԻՐԱՌՄԱՆ ՈԼՈՐՏ
1. Գազասպառման համակարգերի շահագործման և անվտանգության կանոնները (այսուհետ՝ կանոններ) տարածվում են բոլոր այն կազմակերպությունների վրա (անկախ սեփականության ձևից), որոնք նախագծում, կառուցում և շահագործում են բնական գազը, որպես վառելիք օգտագործող առանձին կանգնած և ԲԲՇ-ներում գործող կազմակերպությունների, բնակելի բազմաբնակարան շենքերի, բնակարանների և առանձնատների գազասպառման համակարգերը:
2. Առանձին կանգնած և ԲԲՇ-ներում գործող կազմակերպությունների, բնակելի բազմաբնակարան շենքերի, բնակարանների և առանձնատների գազաֆիկացումը և վերականգնումը պետք է համապատասխանի Հայաստանի Հանրապետության կառավարության 2006 թվականի փետրվարի 9-ի N 129-Ն որոշման, դրույթների պահանջներին, իսկ այրվող գազերի ազդանշանային սարքերը տեղադրվում են բնակելի և հասարակական նշանակություն ունեցող շենքերի, առանձնատների նկուղներում գտնվող, գազաֆիկացված կաթսայատներում, բազմաբնակարան շենքերի ընդհանուր օգտագործման տարածքներում, բնակարաններում և առաձնատներում` Հայաստանի Հանրապետության կառավարության 2007 թվականի փետրվարի 22-ի N 314-Ն որոշման ու Հայաստանի Հանրապետության քաղաքաշինության նախարարի 2004 թվականի մարտի 26-ի N 29-Ն հրամանի հավելված ՀՀՇՆ IV12.03.01-04 «Գազաբաշխիչ համակարգեր» շինարարական նորմերի պահանջների համաձայն և շահագործվում են սույն կանոնների, կազմակերպության ստանդարտի ու ազդանշանային սարքեր արտադրող կազմակերպության հրահանգների պահանջների համաձայն:
3. Սույն կանոնների պահանջները չեն տարածվում`
1) ռազմական նշանակության օբյեկտներում կիրառվող գազի համակարգերի վրա, եթե դրանց անվտանգության պահանջները սահմանվում են հատուկ նորմատիվ ակտերով.
2) փորձնական, հատուկ ծրագրերով իրականացվող գազասպառման համակարգերի վրա:
4. ԳԱԶԱՍՊԱՌՄԱՆ ՀԱՄԱԿԱՐԳԵՐԻ ԱՆՎՏԱՆԳՈՒԹՅԱՆ ԵՎ ՇԱՀԱԳՈՐԾՄԱՆ ԿԱՆՈՆՆԵՐԸ վերաբերում են շահագործման մեջ գտնվող շենքերին, առանձնատների և նոր կառուցվող բազմաբնակարան շենքերին, կենցաղային նպատակներով օգտագործվող` մինչև 0.005 ՄՊա ճնշմամբ տեղակայվող բնական գազի սարքերին և սպառման համակարգերին:
5. Սույն կանոնների պահանջները տարածվում են կենցաղային նպատակներով մինչև 0.005 ՄՊա ճնշմամբ բնական գազ օգտագործող առանձին կանգնած կազմակերպությունների գազաֆիկացված և գազաֆիկացվող, նոր կառուցվող ԲԲՇ-ների ու դրանց բնակարանների, առանձնատների և գազը կենցաղային նպատակներով օգտագործող ԲԲՇ-ում տեղակայված կազմակերպությունների վրա` անկախ տեղակայման հարկից:
6. Սույն կանոններով սահմանվում են`
1) ներքին գազատարերի տեղակայման պահանջները առանձնատներում, բազմաբնակարան շենքերի բնակարաններում և շենքերում տեղակայված կազմակերպություններին սեփականության (տնօրինման) իրավունքով պատկանող (օգտագործվող) տարածքներում.
2) ներքին գազատարերի վրա տեղակայվող անջատիչ և հաշվառքի սարքերի, միացման փականներին առաջադրվող պահանջները և դրանց տեղակայման պայմանները.
3) տարբեր տիպերի կենցաղային գազի սարքերի տեղակայման տեխնիկական պահանջները, ըստ սենքերի նշանակության, սենքերի օդափոխման, այրման համար անհրաժեշտ օդի մատուցման և այրման արգասիքների հեռացման պայմանների, այդ թվում` հորիզոնական ծխաօդատարներով գազի սարքավորումների ծխաօդատարների տեղակայման պայմանները շենքերի և առանձնատների արտաքին պատերի վրա.
4) էլեկտրական ցանցից սնվող էլեկտրական կառավարում ունեցող գազի սարքերի էլեկտրամատակարարմանն առաջադրվող հատուկ պահանջները.
5) գազի սարքերի կամ բնական գազի կիրառման սահմանափակումները ԲԲՇ-ում գտնվող կազմակերպությունների տարածքներում:
7. Սույն կանոններում ընդունված «առնվազն» կամ «ոչ պակաս» նշումով մեծությունների նորմավորվող արժեքները նվազագույններն են, «ոչ ավելի» նշումովը՝ առավելագույնները, իսկ «-ից» վերջավորությամբ և «մինչև» բառով ուղեկցվող մեծությունների բոլոր արժեքները պետք է հասկանալ «ներառյալ»:
ԳԼՈՒԽ 2. ՀԱՍԿԱՑՈՒԹՅՈՒՆՆԵՐԸ ԵՎ ՀԱՊԱՎՈՒՄՆԵՐԸ
8. Սույն կանոններում օգտագործվում են Եվրասիական տնտեսական հանձնաժողովի 2011 թվականի դեկտեմբերի 9-ի «Գազային վառելիքով աշխատող սարքերի անվտանգության մասին (ТР ТС 016/2011)» N 875 որոշմամբ սահմանված հասկացությունները, ինչպես նաև հետևյալ հասկացությունները`
1) Գազասպառման անվտանգության ապահովման համակարգ՝ նախատեսված է ազդանշանիչի միջոցով տվյալ սենքում ածխածնի մոնօքսիդի` CO (շմոլ գազ), բնական գազի՝ CH4 (մեթան), միջավայրի ջերմաստիճանի բարձրացման ահազանգման սահմաններին հասնելու դեպքերում, լուսային և ձայնային ազդանշանների միջոցով իրազեկելու և գազի մատակարարումը վթարային անջատիչ կափույրի միջոցով դադարեցնելու համար.
2) գազի վթարային անջատման փական` շենքի ներքին գազատարի վրա և յուրաքանչյուր բաժանորդի (բնակչի կամ կազմակերպության) գազասպառման համակարգի մուտքի վրա տեղակայվող գազի հոսքի վթարային ընդհատման փական.
3) ծխատար` շենքի կոնստրուկցիայի մաս կազմող կամ առանձին տեղակայվող սարքավորանքների համախումբ` նախատեսված գազի սարքի ելքից կամ սարքի ելքին միացնող խողովակից այրման արգասիքներն արտաքին մթնոլորտ արտանետելու և քաշանք ապահովելու համար, որի տեխնիկական հարաչափերը որոշվում են սարքի տեղակայման նախագծով` սարք արտադրող կազմակերպության հրահանգի և սույն կանոնների պահանջների համաձայն.
4) ծխատարի (ծխաօդատարի) ելք` շենքի արտաքին պատի այն կետը, որտեղ դուրս է բերված ծխատարը կամ համակցված ծխաօդատարը.
5) ծխատարի (ծխաօդատարի) պահպանման (անվտանգության) գոտի` շենքի արտաքին պատի վրա ծխատար անցուղու (ծխաօդատարի) ելքի շուրջն այն մակերևույթը, որից դուրս գտնվող մասերում օդի մաքրությունը համապատասխանում է սանիտարական նորմերին` գազի սարքը անվանական հզորությամբ աշխատելու պայմաններում.
6) ծխատարի (ծխաօդատարի) գլխամաս` ծխատարի (ծխաօդատարի) վերին ծայրամասին տեղակայվող հանգույց` դրա մեջ մթնոլորտային տեղումների մուտքը և կողմնակի առարկաների մուտքը կանխելու, իսկ որոշակի կառուցվածքի դեպքում` նաև քամու անբարենպաստ ազդեցությունը ծխատարի աշխատանքի վրա նվազեցնելու համար.
7) ծխաօդատար (համակցված ծխաօդատար)` այրման փակ խցով գազի սարքի այրման համար անհրաժեշտ օդի մատուցման և ծխագազերի հեռացման համար նախատեսված երկու ուղի ունեցող խողովակների համախումբ: Համակցված ծխաօդատարը կարող է լինել համաառանցքային (տուրբո), կից կամ առանձին տեղակայված.
8) համաառանցքային ծխաօդատար` այրման փակ խցով գազի սարքի այրման համար անհրաժեշտ օդի մատուցման և ծխագազերի հեռացման երկխողովակային սարքավորանք.
9) հավաքական ծխատար` միասնական խողովակ, որը ծառայում է մեկից ավելի գազի սարքերի ծխագազերի հավաքման և արտաքին մթնոլորտ արտանետելու համար.
10) շենքի ելուստով ճակատ` շենքի արտաքին պատ (ճակատ)` 0.5 մ գերազանցող ելուստով (օրինակ` պատշգամբ, խորշապատշգամբ, կամար և այլն), որոնց առկայությունը պետք է հաշվի առնվի անվտանգության գոտու չափերը որոշելիս.
11) շենքի հարթ ճակատ` շենքի արտաքին պատ (ճակատ), առանց ելուստի կամ 0.5 մ-ից ոչ ավելի խորության ելուստներով, որոնք չեն ազդում անվտանգության գոտու մեծության վրա.
12) որմնաբացվածք (բացվածք)` դռներ, պատուհաններ և շենքի կառուցվածքում այլ բացվածքներ, որոնցով միանում են արտաքին մթնոլորտը ու շենքի ներքին մասը.
13) ստուգում` գազի սարքի աշխատանքային հարաչափերի արժեքների գործիքային չափումներ կամ գազի սարքի գործառական ծրագրով սահմանված գործողությունների ստուգում.
14) քամու ազդեցության գոտի` ծխատարի ելքի կամ սարքի տեղակայման սենքի գտնվելու հարաչափեր (կոորդինատներ)` քամու համար բնական կամ արհեստական պատնեշի նկատմամբ, որի դեպքում առաջանում է ծխատարի քարշի կամ սենքի օդափոխության համակարգի վրա ազդող միջավայրի ճնշման մեծացում կամ նվազում (նոսրացում):
15) քամու դիմհար գոտի` ծխատարի ելքի տեղակայման տարածքի հարաչափները (կոորդինատներ) քամու համար բնական կամ արհեստական պատնեշի նկատմամբ, որի դեպքում տեղի է ունենում անբարենպաստ ազդեցություն ծխատարի քարշի վրա:
ԱԱՀ-անվտանգության ազդանշանային համակարգ
ԱՋՏ-արագային ջրատաքացուցիչ
ԲԲՇ-բազմաբնակարան շենք
ԳՀՍ-գազի հաշվառման սարք (հաշվիչ)
ԳՕ-գազօջախ
ՎԱԿ-վթարային անջատիչ կափույր
ԾԱ-ծխատար անցուղի (հորիզոնական)
ԾՈՒ-ծխատար ուղի (ուղղահայաց)
ԿԿ-կենցաղային կաթսա (ջեռուցման և տաք ջրամատակարարման)
ՁԱՍ-ձայնային ազդանշանային սարք
ՋՎ-ջեռուցման վառարան
ՋՏ-ջրատաքացուցիչ (անոթային)
ՍԿ-սյունակաթսա
ՕԴ-օդատար ուղի
ԳԼՈՒԽ 3. ԲԲ ՇԵՆՔԵՐԻ, ԲՆԱԿԱՐԱՆՆԵՐԻ, ԱՌԱՆՁՆԱՏՆԵՐԻ ԵՎ ԿԵՆՑԱՂԱՅԻՆ ՆՊԱՏԱԿՆԵՐՈՎ ԳԱԶԱՕԳՏԱԳՈՐԾՈՂ ԿԱԶՄԱԿԵՐՊՈՒԹՅՈՒՆՆԵՐԻ ԳԱԶԱՍՊԱՌՄԱՆ ՀԱՄԱԿԱՐԳԵՐԻ ԱՆՎՏԱՆԳՈՒԹՅՈՒՆ
9. Նոր նախագծվող ԲԲՇ-ների, բնակարանների, առանձնատների և կենցաղային նպատակներով գազօգտագործող կազմակերպությունների ջեռուցման կամ տաք ջրամատակարարման համար գազի սարքերի կիրառումը պետք է հիմնավորվի տեխնիկատնտեսական հաշվարկներով` հաշվի առնելով շրջակա միջավայրի պահպանության պահանջները:
10. Կառուցվող և վերակառուցվող ԲԲՇ-ների գազաֆիկացման համար պետք է մշակվեն լրակազմ նախագծեր` գազասպառման համակարգերի ներառմամբ: Վերջիններս պետք է պարունակեն տվյալներ` յուրաքանչյուր բնակարանում գազի տարբեր նշանակության սարքերի տեղակայման տարբերակների վերաբերյալ` հաշվի առնելով սույն կանոններով սահմանված սահմանափակումները` «Ա», «Բ» և «Ց» տիպի գազի սարքերի օգտագործման վերաբերյալ:
11. Բնակելի և այլ նշանակության շենքերում, որտեղ տեղակայվում են միայն սնունդ պատրաստելու գազօջախներ, ածխաջրածնային հեղուկ գազի անհատական գազաբալոնային տեղակայանքների տեղակայումը կարող է կատարվել գազամատակարարող կազմակերպությունների կողմից տրամադրված կամ համաձայնեցված նախագծի (էսքիզային սխեմաների) հիման վրա:
ԳԼՈՒԽ 4. ԳԱԶԱՍՊԱՌՄԱՆ ՀԱՄԱԿԱՐԳԵՐԻՆ ԱՌԱՋԱԴՐՎՈՂ ԱՆՎՏԱՆԳՈՒԹՅԱՆ ԸՆԴՀԱՆՈՒՐ ՊԱՀԱՆՋՆԵՐԸ
12. Սույն կանոններով սահմանված բնական կամ հեղուկ գազի համակարգի և դրա անվտանգ աշխատանքն ապահովող այլ համակարգերի նկատմամբ տեխնիկական պահանջները և գազի սարքերի կիրառման սահմանափակումները սահմանված են` ելնելով բնական գազի օգտագործման (այրման) հետ կապված հետևյալ վնասակար և վտանգավոր գործոնների ազդեցության ռիսկերի նվազեցման պայմաններից`
1) գազի ներշենքային և գազասպառման համակարգերում գազատարերի հուսալի միացումների կիրառում` բնականոն և ֆորս մաժորային իրավիճակներում (երկրաշարժ, հրդեհ, պատահական մեխանիկական ազդեցություն և այլն) գազի արտահոսքի ռիսկը նվազագույնի հասցնելու նպատակով.
2) գազասպառման ներքին համակարգերում գազատարերից գազի հնարավոր արտահոսքի դեպքում շենքի (սենքի) ներքին տարածքներում գազի վտանգավոր քանակի կուտակման կանխարգելում` բնական կամ արհեստական օդափոխության նախատեսմամբ, իսկ դրանց անարդյունավետության կամ անհնարինության դեպքերում` բնական գազի հոսքի դադարեցման ինքնաշխատ համակարգերի կիրառում:
3) գազօգտագործողներին հասանելի պայմաններով գազի մուտքի օպերատիվ դադարեցման տեխնիկական միջոցների նախատեսում գազատարերի վրա` վթարների և արտակարգ իրավիճակներում գազի մուտքի (ձեռքով) դադարեցման համար.
4) գազի սարքերի, դրանց ջերմային հզորության մեծության և դրանց անվտանգության ապահովման տեխնիկական միջոցների նկատմամբ պահանջներ, որոնց կատարմամբ նվազում է սենքերում այրման արգասիքների և բնական գազի կուտակման ռիսկը.
5) սենքում կամ ընդհանուր օգտագործման տարածքներում գազի կուտակման կանխարգելում` բնական գազի արտահոսքերի կուտակումների հսկման և նրա մուտքի դադարեցման ինքնաշխատ սարքի կիրառմամբ.
6) ծխաօդատարների, դրանց ելքի մասի տեղակայման կետի, կառուցվածքի, հուսալիության, հրակայունության նկատմամբ պահանջներ, որոնց կատարմամբ ապահովվում է նրանց հրդեհային անվտանգությունը, մարդկանց գտնվելու վայրերում արտանետումների թույլատրելի մակարդակի չգերազանցումը.
7) հատուկ պահանջներ քամու դիմհարի կամ ազդեցության գոտում գտնվող սենքերում տեղակայված գազի սարքերի ծխաօդատար համակարգերի նկատմամբ.
8) բնական և հեղուկ գազի համակարգի կիրառման արգելանքներ կամ սահմանափակումներ ԲԲՇ-ներում տեղակայված որոշակի կազմակերպությունների համար, որոնց կողմից գազի կամ առանձին գազի սարքերի օգտագործումը կարող է վտանգ ներկայացնել բնակիչների կամ շենքի համար.
9) ԲԲՇ-ի յուրաքանչյուր աստիճանավանդակում (ուր հավաքակցված են ներքին գազատարերը կամ գազի հաշվիչ հանգույցները) պետք է նախատեսել այրվող գազերի ազդանշանային սարքերի և դրանց միացված ինքնաշխատ անջատիչ կափույրի տեղադրում` շենքի ներանցնող մասում կամ կանգնակների վրա:
13. Գազասպառման ներքին համակարգի անվտանգ շահագործումը համարվում է ապահովված, եթե`
1) գազասպառման ներքին համակարգը նախագծված, կառուցված և փորձարկված է՝ համաձայն սույն կանոնների պահանջների, իսկ գազի սարքերը բավարարում են Եվրասիական տնտեսական հանձնաժողովի 2011 թվականի դեկտեմբերի 9-ի «Գազային վառելիքով աշխատող սարքերի անվտանգության մասին (ТР ТС 016/2011)» N 875 որոշմամբ սահմանված պահանջները.
2) տեղակայված գազի սարքերը, այրման համար օդի մատուցման, սենքերի օդափոխության, այրման արգասիքների հեռացման տեխնիկական միջոցները օգտագործվում և սպասարկվում են` համաձայն Եվրասիական տնտեսական հանձնաժողովի 2011 թվականի դեկտեմբերի 9-ի «Գազային վառելիքով աշխատող սարքերի անվտանգության մասին (ТР ТС 016/2011)» N 875 որոշմամբ սահմանված պահանջների, գազի սարքերի շահագործման վերաբերյալ արտադրող կազմակերպությունների հրահանգ ների և սույն կանոնների պահանջների.
3) գազի սարքերի վրա կամ առանձին տեղակայված անվտանգության ու ազդանշանման սարքերը մշտապես գտնվում են աշխատունակ վիճակում և աշխատանքի մեջ.
4) գազի սարքերն օգտագործվում են՝ ըստ իրենց նշանակության, շահագործման հրահանգների համաձայն.
5) գազասպառման համակարգում տարեկան առնվազն 2 անգամ իրականացվում են տեխնիկական սպասարկման և գազասպառման համակարգն օգտագործող անձանց բնական գազի անվտանգ օգտագործման պահանջների վերաբերյալ հրահանգավորման աշխատանքներ:
6) շենքի ընդհանուր օգտագործման տարածքների նախագծով նախատեսված բնական կամ արհեստական օդափոխման համակարգերը և ազդանշանման սարքերը մշտապես գտնվում են աշխատունակ վիճակում.
7) գազասպառման համակարգերի տեխնիկական սպասարկումը և շահագործումը թույլատրվում է կատարել միայն կազմակերպության ստանդարտով սահմանված կարգով և ծավալով, ուսուցանված և կազմակերպության կողմից նշանակված հանձնաժողովին գիտելիքների ստուգում անցած ԻՏԱ և բանվորական անձնակազմին:
14. Գազաֆիկացված շենքերի ներտնային գազասպառման համակարգերը, որոնք չեն համապատասխանում սույն կանոնների պահանջներին, պետք է վերակառուցվեն, սպառողի կողմից ինքնակամ նախագծից շեղման դեպքում սպառողի միջոցների հաշվին, իսկ մատակարարի կողմից թույլ տրված խախտման դեպքում՝ մատակարար կազմակերպության շահույթի հաշվին: Մինչև վերակառուցման ավարտը` այդ շենքերի գազի համակարգերը (դրա առանձին տարրերը) գնահատվում են անվտանգության տեսակետից որպես ռիսկային և անվտանգության համար պատասխանատու, և հսկող կազմակերպությունների կողմից պետք է իրականացվեն անհրաժեշտ լրացուցիչ միջոցառումներ` ռիսկերի նվազեցման համար, այդ թվում`
1) անվտանգության հարաչափերի հսկման և կառավարման համակարգ չունեցող գազի սարքերի սպասարկման ծավալների մեծացում` կախված սարքի օգտագործման ժամանակից և նման գազի սարքերի հրաժարումների վիճակագրական տվյալներից.
2) ներքին գազատարերի տեխնիկական վիճակի հաճախ կատարվող պարբերական վերահսկողություն` առանձնապես բարձր հարկայնության շենքերի համար.
3) ներքին գազատարերի վերակառուցման պլանավորում և իրականացում` դրանք աստիճանաբար սույն կանոնների պահանջներին համապատասխանեցնելու համար.
4) ձմռան ամիսներին գազասպառման համակարգերի արտահերթ զննումներ` խախտումների հայտնաբերման և վերացման համար, իսկ գազի սարքերը շահագործող անձանց հրահանգավորում գազի անվտանգ օգտագործման պահանջների վերաբերյալ:
15. Յուրաքանչյուր նոր շենքի գազաֆիկացումը պետք է իրականացվի սահմանված կարգով համաձայնեցված միասնական նախագծով (սերիական տիպային շենքերի համար` տիպային), որի մեջ ներառվում են`
1) շենքի ներքին գազատարերի, դրանց արմատուրների և գազահաշվիչների տեղակայումը, ընդհանուր օգտագործման տարածքների օդափոխության համակարգը, դրանցում վնասակար գազերի առկայության վերահսկման համակարգը.
2) առանձին բնակարանների գազի սպառման համակարգերը` տարբեր գազի սարքերի տեղակայման թույլատրելի տարբերակներով (օրինակ` ջեռուցման կոնվեկտիվ վառարաններ կամ անհատական կաթսաներ, ջրատաքացուցիչներ, դրանց առավելագույն հզորությունը, տեղակայման վայրերը, ծխաօդատարները, ծխատար ուղիները, օդատար ուղիները և այլն): Այս նախագծերը պետք է հավասար պայմաններ նախատեսեն բոլոր բնակարաններում գազի սարքերի օգտագործման համար` ապահովելով անվտանգությունը, այդ թվում` հորիզոնական ծխաօդատարներով «Ց» տիպի գազի սարքերի կիրառման հնարավորությունները.
3) անհատական կամ կոլեկտիվ ծխաօդատարների տեղակայումը, սենքերի օդափոխության պայմանները` հաշվի առնելով հարկայնությունը, շենքի դիրքը տարածքի ընդհանուր կառուցապատման մեջ, ճարտարապետական պահանջները.
4) գազի սարքերի էլեկտրասնուցման և ջրամատակարարման պայմանները:
16. Հաստատված նախագծերով կառուցվող կամ կառուցված շենքերի ներքին գազատարերի, գազասպառման համակարգերի, դրանց անվտանգ աշխատանքն ապահովող ծխատար և օդատար ուղիների, գազի սարքերի հզորության կամ տիպի, դրանց տեղակայման սենքերի ծավալների փոփոխությունները կարող են կատարվել միայն համալիր ստուգումներից և նախագծերի փոփոխումից հետո:
17. Գազասպառման համակարգերի անվտանգ աշխատանքն ապահովող ծխատար և օդատար ուղիների կառուցումը և վերակառուցումը, փորձարկումները պետք է կատարվեն լիցենզավորված կազմակերպությունների, իսկ թողարկումը՝ գազամատակարար կազմակերպության կողմից: Աշխատանքները տարբեր կազմակերպությունների կողմից իրականացվելու դեպքում մատակարարը պետք է վերահսկի յուրաքանչյուրի կողմից իրականացված աշխատանքները` համակարգի անվտանգության ապահովման նպատակով:
18. Տեղակայվող բնական կամ հեղուկ գազի սարքերը պետք է փորձարկվեն և ստուգվեն տեղակայողի կողմից և բավարարեն հետևյալ պահանջները`
1) գազի սարքը պետք է համապատասխանի արտադրող կազմակերպության տեղակայման, շահագործման և սպասարկման հրահանգներին: Հրահանգները պետք է լինեն հայերեն.
2) գազի սարքը պետք է համապատասխանի սույն կանոններով նախատեսված տեղակայման վայրին առաջադրվող պահանջներին (սույն կանոնների 2-րդ բաժին).
3) փորձարկման ժամանակ գազի սարքի կառավարման և անվտանգության համակարգերը պետք է գործեն հրահանգով նախատեսված հարաչափերով:
19. Փորձարկումների ծավալներն ընդունվում են ըստ արտադրող կազմակերպության հրահանգների: Հրահանգների բացակայության դեպքում փորձարկումները կատարվում են ըստ գազամատակարարող կազմակերպության կողմից սահմանված ծավալների: Գազամատակարարման համակարգում գազի ճնշումը և տարբեր ռեժիմներում դրա շեղումները պետք է համապատասխանեն տեղակայվող գազի սարքի համար արտադրող կազմակերպության հրահանգով սահմանված թույլատրելի ճնշումներին, ընդ որում՝ գազի սարքում գազի աշխատանքային ճնշման ապակարգաբերում չի թույլատրվում, եթե այն նախատեսված չէ արտադրող կազմակերպության հրահանգով:
ԳԼՈՒԽ 5. ԳԱԶԱՍՊԱՌՄԱՆ ՀԱՄԱԿԱՐԳԵՐԻ ԵՎ ԳԱԶՕԳՏԱԳՈՐԾՈՂ ՍԱՐՔԵՐԻ ԿԻՐԱՌՄԱՆ ՍԱՀՄԱՆԱՓԱԿՈՒՄՆԵՐԸ ԲԲՇ-ՈՒՄ
20. Վեց և բարձր բնակելի հարկայնության ԲԲՇ-ների նկուղային և կիսանկուղային հարկերում տեղակայված հանրային սննդի, առևտրի, կենցաղային սպասարկման կազմակերպությունների սենքերում բնական գազի սարքերի տեղակայումն արգելվում է:
21. Հինգ և ցածր հարկայնության ԲԲՇ-ների նկուղային և կիսանկուղային հարկերում թույլատրվում է միայն սննդի պատրաստման գազօջախների կիրառում: Այդ գազօջախները պետք է ունենան բոցի վերահսկման ինքնաշխատ համակարգ և սենքում պետք է տեղակայված լինի բնական գազի և ածխածնի մոնօքսիդի կոնցենտրացիայի վերահսկման ինքնաշխատ համակարգ: Նշված համակարգերը պետք է գործեն գազի հոսքի (մուտքի) ընդհատման համար:
22. ԲԲՇ-ի նույն սենքում գազօջախի և այրման բաց խցով գազի սարքերի համատեղ տեղադրումն արգելվում է, եթե սենքի ծավալը փոքր է տվյալ գազի սարքերի համար արտադրող կազմակերպության կողմից սահմանված թույլատրելի ծավալների գումարից:
23. Գազի սարքեր արգելվում է տեղակայել`
1) ԲԲՇ-ի նկուղային և կիսանկուղային հարկերում գտնվող, որպես խոհանոց հարմարեցված առանց բնական լուսավորության սենքերում.
2) շենքերի տարբեր սեփականատերերի կողմից օգտագործվող ընդհանուր օգտագործման միջանցքներում.
3) զուգարաններում և սանհանգույցներում.
4) լոգարաններում, եթե դրանք չունեն բնական օդափոխություն.
5) ննջարաններում.
6) հյուրանոցների բնակելի համարներում.
7) սենքերում, որտեղ կարող են պահվել դյուրավառ կամ բռնկվող նյութեր.
8) մանկական խաղասենյակներում, ննջասենյակներում և դրանց տակ գտնվող սենքերում:
ԳԼՈՒԽ 6. ԲԲՇ-ՆԵՐԻ, ԱՌԱՆՁՆԱՏՆԵՐԻ ԵՎ ԿԱԶՄԱԿԵՐՊՈՒԹՅՈՒՆՆԵՐԻ ԳԱԶԱՍՊԱՌՄԱՆ ԳԱԶԱՏԱՐԵՐԻ ՏԵՂԱԿԱՅՄԱՆՆ ԱՌԱՋԱԴՐՎՈՂ ՊԱՀԱՆՋՆԵՐԸ
24. ԲԲՇ-ի, առանձնատների և առանձին կանգնած կազմակերպությունների ներքին գազատարերը պետք է տեղակայվեն հետևյալ պահանջների կատարմամբ`
1) գազատարերի միացումները պետք է լինեն չկազմատվող՝ բացառությամբ գազի սարքերի հետ միացումներից, ինչպես և գազի անջատման ինքնաշխատ կափույրի միացումներից: Ճկուն ծալքավոր խողովակների միացումները պետք է կատարվեն միայն գազի համար նախատեսված արմատուրներով` մասնագիտացված անձնակազմի կողմից.
2) գազատարերը պետք է պաշտպանված լինեն կոռոզիայից և արտաքին մեխանիկական ազդեցություններից, շենքերի կոնստրուկցիայի հետ հատման տեղերում պաշտպանված լինեն մետաղական պատյանով այնպես, որ շենքի թույլատրելի նստվածքների կամ ջերմաստիճանային տատանումների դեպքերում գազատարերը չենթարկվեն մեխանիկական լարումների.
3) գազատարերը չպետք է անցնեն` պայթյունավտանգ և այրվող նյութեր պահվող սենքերով, նկուղներով, էլեկտրասարքավորումների համար նախատեսված վահանակներով, պոմպակայաններով, օդատարներով, խցերով և հորաններով, վերելակների հորաններով, շենքերի կրող կոնստրուկցիաներով, տեխնիկական սենքերով, աղբահավաքման սենքերով, ծխնելույզներով կամ հատեն դրանք: Շենքերի մաս կազմող այլ տարածքներով, որոնք կարող են հասանելի չլինել գազի համակարգը սպասարկող անձնակազմին:
25. Անհատական գազի հաշվիչներից և գազի սարքերից առաջ գազատարերի վրա պետք է տեղադրել անջատիչ սարքեր:
26. Գազի անջատիչ սարքերը պետք է տեղակայված լինեն սպասարկման համար հարմար տեղում:
27. Մետաղական խողովակներով ներքին գազատարերի վրա կազմատվող միացումները բնակարաններից դուրս պետք է կատարվեն միայն կոշտ շրջանակի վրա գազատար խողովակների ամրացմամբ կարգավորվող սեղմակներով, այդ թվում` հաշվիչի մուտքային և ելքային միացումները:
28. Ներտնային թաքնված (քողարկված) եղանակով տեղակայվող մետաղական խողովակներով գազատարերը պետք է միացվեն բացառապես եռակցմամբ:
29. Շենքերի ընդհանուր օգտագործման ներքին փակ տարածքներում գազի հսկիչ սարքերի, հաշվիչների ու փականների տեղադրման դեպքում պետք է տեղակայված լինեն օդափոխման հարմարանքներ:
30. Մինչև հինգհարկանի ԲԲՇ-ներում ներքին գազատարերը կարող են անցկացվել ընդհանուր աստիճանավանդակներով, միջանցքներով կամ անցումներով` բաց եղանակով: Եթե դրանք հանդիսանում են մարդկանց տարհանման միակ ճանապարհը, ինչպես նաև վեցհարկանի և ավելի բարձր հարկայնության ԲԲՇ-ներում պետք է կատարվի հետևյալ պահանջներից առնվազն մեկը`
1) գազատարերը պետք է տեղակայվեն 90 րոպե հրդեհակայունության արգելապատ ունեցող հրդեհակայուն հորանում կամ անցքում, որոնցում ապահովված է բավարար օդափոխություն.
2) գազատարերն անցկացված են ոչ պակաս, քան 15 մմ հաստությամբ ծեփի տակ` առանց օդային բացակի և ամրացված հրդեհակայուն ամրակներով:
31. ԲԲՇ-ների և առանձնատների գազասպառման համակարգը պետք է էլեկտրականապես մեկուսացված լինի գազի արտաքին ցանցից մեկուսացնող ներդիրի տեղակայման միջոցով և հողակցվի: Սույն պահանջի կատարման անհնարինության դեպքում մեկուսացում պետք է տեղադրել գազասպառման ներքին համակարգի մուտքային գազատարերի վրա:
32. ԲԲՇ-ների գազասպառման համակարգի վրա տեղակայված արմատուրը, հաշվիչները, գազի սպառման համակարգի տարրերը պետք է տեղակայված լինեն այլ նշանակության հաղորդագծերից, էլեկտրական գծերից, սարքերից, ջրի համակարգի տարրերից և գազի համակարգի վրա հնարավոր ազդեցություն ունեցող այլ տարրերից՝ համաձայն ոլորտը կարգավորող Հայաստանի Հանրապետության օրենսդրության համապատասխան նորմատիվ իրավական ակտերի պահանջների:
33. «Ա» տիպի գազի սարքերի միացումը գազատարերին կարող է իրականացվել ինչպես մետաղական խողովակով, այնպես էլ հրակայուն և ջերմակայուն ռետինե գործվածքային ճկախողովակով` հետևյալ պայմանների կատարմամբ`
1) ճկախողովակը պետք է լինի 1,5 մ-ից ոչ ավելի երկարությամբ, ամրացված կայուն անշարժ հիմքի վրա, որը կբացառի ճկախողովակի դիրքի փոփոխումը կամ գազի սարքի տեղափոխումն առանց ճկախողովակի անջատման.
2) ճկախողովակը պետք է լինի կայուն (չդեֆորմացվող)` շրջակա միջավայրի առավելագույն և նվազագույն ջերմաստիճանների դեպքերում.
3) գազի հոսքի ուղղությամբ ճկախողովակի մուտքի վրա տեղակայված լինի անջատող սարք:
34. Սենքերում գազատարերը կարող են տեղակայվել ինչպես բաց, այնպես էլ թաքնված (քողարկված) ձևով: Թաքնված գազատարերը պետք է համապատասխանեն հետևյալ պահանջներին`
1) դրանք պետք է լինեն կոշտ մետաղական.
2) լինեն առանց պարուրակային միացումների, դրանց վրա տեղադրված չլինեն անջատիչ կամ հսկող սարքեր.
3) պաշտպանված լինեն խոնավությունից և կոռոզիայից.
4) չհատվեն թաքնված էլեկտրական, ջեռուցման ու ջրի համակարգերի, կապի գծերի հետ.
5) չհատվեն օդատարների կամ ծխատարների հետ կամ չանցնեն դրանց միջով:
35. Էլեկտրակառավարում ունեցող գազի սարքը գազատարին ոչ մետաղական ճկուն խողովակով միացման դեպքում գազի սարքի էլեկտրաանվտանգությունը պետք է ապահովվի էլեկտրասնման շղթայում տեղակայվող համապատասխան պաշտպանական սարքերով՝ համաձայն ոլորտը կարգավորող Հայաստանի Հանրապետության օրենսդրության համապատասխան նորմատիվ իրավական ակտերի պահանջների: Թափառող էլեկտրական հոսանքների անցումը գազատարով բացառելու համար աստիճանավանդակի գազի կանգնակի կամ դրա բացակայության դեպքում շենքի ներանցնող մասի գազատարի վրա տեղադրել մեկուսացնող կցորդիչ: ԲԲՇ-ների գազասպառման ներքին համակարգում էլեկտրաֆիկացված գազի սարքեր տեղակայելիս, դեպի գազի սարք գնացող իջուցիկ խողովակի վրա փականից հետո նախատեսել մեկուսացնող կցորդիչի տեղադրում: Որպես մեկուսացնող կցորդիչ կարող են ծառայել ոչ հոսանքահաղորդիչ ռետինե խողովակները:
36. Գազասպառման համակարգերի և դրանց անվտանգ աշխատանքն ապահովող ծխատար և օդատար ուղիների նախագծային լուծումները չեն կարող փոփոխվել պատվիրատուի (սեփականատիրոջ) կամ այլ անձի պահանջով` առանց նախագծում սահմանված կարգով համապատասխան փոփոխություններ կատարելու:
37. Շենքերում շինարարական այնպիսի փոփոխությունների կատարումը, որոնք հանգեցնում են գազասպառման համակարգի և ծխատար և օդատար ուղիների գործող նախագծով սահմանված աշխատանքի պայմանների փոփոխման, պետք է սահմանված կարգով համաձայնեցվեն գազի համակարգը նախագծող կազմակերպության հետ:
38. Գազատարերի անցկացումը շինարարական ցանկացած կոնստրուկցիայի միջով պետք է կատարվի ամենակարճ ճանապարհով, խցուկված պաշտպանիչ պատյանի միջով, որը պահպանում է գազատարը վնասվածքից` կոնստրուկցիայի ձևախախտումների դեպքերում, ինչպես նաև`
1) ապահովում է անցման գազանթափանցիկությունը գազատարի անցման մի հատվածից մյուսը.
2) չի խախտում անցման տեղի շինարարական կոնստրուկցիայի հրդեհային կայունության աստիճանը.
3) բացառում է գազի հավաքման հնարավորությունը կոնստրուկցիայի դատարկ տեղերում` գազատարի վնասման դեպքում:
39. Ներշենքային գազատարերը պետք է տեղակայվեն այնպես, որ բացառվի դրանց առանձին հատվածներում գազի խտուցքի հավաքվելը և գազախողովակի խցանումը:
40. Ճկուն ծալքավոր մետաղախողովակով գազատարերը պետք է ունենան կոշտ պաշտպանիչ պատյան, եթե դրանք շենքերի արտաքին պատերի վրա կամ սենքերի ներսում տեղակայվում են 2.2 մ-ից պակաս բարձրության վրա` հաշված մարդկանց հաճախակի գտնվելու տարածքների նիշից: Պաշտպանիչ պատյան պետք է նախատեսել նաև այն դեպքերում, երբ դրանք տեղակայվում են պատուհանների տակ կամ այնպիսի վայրերում, որտեղ կա գազատարի վնասման հավանականություն պատահական մեխանիկական ազդեցությունից:
ԳԼՈՒԽ 7. ՓԱԿԱՆՆԵՐԻՆ, ԿՑԱՄԱՍԵՐԻՆ, ԱԶԴԱՆՇԱՆՄԱՆ ՍԱՐՔԵՐԻՆ, ՀԱՇՎԱՌՔԻ ՍԱՐՔԵՐԻՆ ԵՎ ԴՐԱՆՑ ՏԵՂԱԿԱՅՄԱՆՆ ԱՌԱՋԱԴՐՎՈՂ ՊԱՀԱՆՋՆԵՐԸ
41. ԲԲՇ-ում յուրաքանչյուր բաժանորդի գազի մուտքային անհատական գազատարի վրա պետք է տեղակայվի բաժանորդի գազասպառման համակարգում կամ հաշվիչից առաջ վթարային իրավիճակների դեպքում գազի անջատման ձեռքով կառավարվող սարք (փական), որը պետք է բավարարի հետևյալ պայմաններին`
1) պետք է տեղակայված լինի մուտքային գծի վրա` տվյալ հարկում.
2) տեղակայված լինի 2 մ-ից ոչ ավելի բարձրության վրա.
3) բանալիով փակված արկղում (օրինակ` հաշվիչի արկղում) տեղակայելու դեպքում բանալու օրինակը ստորագրությամբ հանձնված լինի բաժանորդին.
4) փականը հնարավոր լինի փակել ձեռքով, առանց հատուկ հարմարանքների օգտագործման: Գազի փականի բռնակը պետք է հուսալի ամրացված լինի փականի վրա.
5) արկղի վրա լինի «N բնակարանի գազի վթարային փական» գրառումը.
6) բաժանորդը (բնակիչը, կազմակերպության աշխատողը) հրահանգավորված լինի գազի վթարային անջատման սարքի առկայության և դրա կիրառման պայմանների մասին.
7) փականի «բաց» դիրքը պետք է համապատասխանի փականի բռնակի` գազատարի առանցքին զուգահեռ դիրքին:
42. Բնակարանում կամ կազմակերպության տարածքում տեղադրված յուրաքանչյուր գազի սարքի գազի մուտքային գծի վրա հասանելի բարձրությամբ և տեղում պետք է տեղակայված լինի ձեռքով կառավարվող փական:
43. Գազի հաշվիչները պետք է տեղակայվեն շենքի օդափոխվող տարածքներում կամ շենքից դուրս, բաց տարածքում, բայց շենքին հնարավորին չափ մոտ կամ շենքի արտաքին պատի վրա: Հաշվիչները և դրանց միացվող գազատարերը պետք է տեղակայվեն այնպես, որ արտաքին մեխանիկական ու ջերմային ազդեցության ռիսկերը (հատկապես` տրանսպորտային միջոցների ու մեխանիզմների) լինեն նվազագույնը:
44. Գազի հաշվիչները վեց և ավելի հարկայնությամբ նոր գազաֆիկացվող շենքերում չպետք է տեղակայվեն աստիճանավանդակներում, եթե այդ աստիճանավանդակները հրդեհի դեպքում հանդիսանում են մարդկանց տարհանման միակ ճանապարհը:
45. Գազի հաշվիչները պետք է տեղակայված լինեն փակվող դռնակով արկղերի մեջ:
46. Գազի հաշվիչները պետք է տեղակայվեն էլեկտրական սարքավորումներից և գծերից անվտանգ հեռավորության վրա` համաձայն ոլորտը կարգավորող Հայաստանի Հանրապետության օրենսդրության համապատասխան նորմատիվ իրավական ակտերի պահանջների:
47. Հաշվիչները պետք է տեղակայվեն սպասարկման և գրառման համար հարմար վայրում, որտեղ ապահովված է բաժանորդի ու գազամատակարար և սպասարկող կազմակերպությունների աշխատողների ազատ մուտքն օրվա բոլոր ժամերին:
ԲԱԺԻՆ 2. ԳԱԶԻ ՍԱՐՔԵՐԻ ՏԵՂԱԿԱՅՄԱՆԸ ՆԵՐԿԱՅԱՑՎՈՂ ԱՆՎՏԱՆԳՈՒԹՅԱՆ ՊԱՀԱՆՋՆԵՐԸ
ԳԼՈՒԽ 8. ԸՆԴՀԱՆՈՒՐ ՊԱՀԱՆՋՆԵՐ
48. ԲԲՇ-ներում, առանձնատներում և գազը կենցաղային նպատակներով օգտագործող կազմակերպություններում կարող են օգտագործվել «Ա», «Բ» և «Ց» տիպի գազի սարքեր` սույն կանոններով սահմանված պահանջների և գազի սարքերի տեղակայման արտադրող կազմակերպության հրահանգների կատարմամբ: Նշված տիպի սարքերից կարող են օգտագործվել հետևյալ ենթատիպերը, որոնք բավարարում են Եվրասիական տնտեսական հանձնաժողովի 2011 թվականի դեկտեմբերի 9-ի «Գազային վառելիքով աշխատող սարքերի անվտանգության մասին (ТР ТС 016/2011)» N 875 որոշմամբ սահմանված պահանջներին`
Գազի uարքերը, ըuտ այրման համար անհրաժեշտ oդի մատուցման և ծխագազերի հեռացման համակարգերի, uտորաբաժանվում են`
Ա (A) տիպի` դրանք այն uարքերն են, որոնք այրման համար անհրաժեշտ oդը վերցնում են այն uենքի ներuից, որտեղ տեղադրված են, և ծխագազերը չեն հեռացվում, տարածվում են նույն uենքի ներuում.
Բ (B) տիպի` դրանք այն uարքերն են, որոնք այրման համար անհրաժեշտ oդը վերցնում են uենքի ներuից, իuկ ծխագազերը հեռացվում են մթնոլորտ.
Ց (C) տիպի` դրանք այն uարքերն են, որոնք այրման համար անհրաժեշտ oդը վերցնում են դրuից (մթնոլորտային oդ), և ծխագազերը հեռացվում են դուրu: Դրանք փակ, հերմետիկ այրման խցով գազի uարքերն են.
1) Ա1` «Ա» տիպի գազի սարք առանց օդամուղի.
2) Ա2 «Ա» տիպի գազի սարք՝ այրիչից (ջերմափոխանակչից) հետո օդամուղով.
3) Ա3` «Ա» տիպի գազի սարք՝ այրիչից առաջ օդամուղով.
4) Բ11` «Բ» տիպի գազի սարք` քաշանքի կայունարարով այրման խցով, առանց օդամուղի.
5) Բ13` «Բ» տիպի գազի սարք` քաշանքի կայունարարով այրման խցով, այրիչից առաջ օդամուղով.
6) Բ22` «Բ» տիպի գազի սարք` առանց քաշանքի կայունարարի այրման խցով, ջերմափոխանակչից առաջ օդամուղով.
7) Բ23` «Բ» տիպի գազի սարք` առանց քաշանքի կայունարարի այրման խցով, ջերմափոխանակչից հետո օդամուղով.
8) Բ32` «Բ» տիպի գազի սարք` առանց քաշանքի կայունարարի այրման խցով, այրիչից հետո տեղադրված օդամուղով, որի այրման արգասիքների ուղու բոլոր մասերն օդափչվում են այրման համար մատուցվող օդով.
9) Բ33` «Բ» տիպի գազի սարք առանց քաշանքի կայունարարի այրման խցով, այրիչից առաջ տեղադրված օդամուղով, որի այրման արգասիքների ուղու բոլոր մասերն օդափչվում են այրման համար մատուցվող օդով.
10) Ց11` «Ց» տիպի գազի սարք փակ այրման խցով, հորիզոնական ծխաօդատարով առանց օդամուղի.
11) Ց12` «Ց» տիպի գազի սարք փակ այրման խցով, հորիզոնական ծխաօդատարով ջերմափոխանակչից հետո օդամուղով.
12) Ց13` «Ց» տիպի գազի սարք փակ այրման խցով, հորիզոնական ծխաօդատարով այրիչից առաջ օդամուղով.
13) Ց32` «Ց» տիպի գազի սարք այրման խցով, որում այրման համար օդի վերցնելը և այրման արգասիքների հեռացումը կատարվում են տանիք դուրս հանված համակարգով, ջերմափոխանակչից հետո տեղակայված օդամուղով.
14) Ց33` «Ց» տիպի գազի սարք այրման խցով, որում այրման համար օդի վերցնելը և այրման արգասիքների հեռացումը կատարվում են տանիք դուրս հանված համակարգով, այրիչից առաջ տեղակայված օդամուղով.
15) նաև Հայաստանի Հանրապետությունում շահագործվող և շուկայում վաճառքում գտնվող «Բ1» ենթատիպի գազի սարքեր («Բ» տիպի գազի սարք առանց քաշանքի կայունարարի այրման խցով, առանց օդամուղի` կոնվեկտիվ վառարաններ և արագային ջրատաքացուցիչներ), որոնք չունեն քաշանքի հսկման անվտանգության սարքեր:
49. Գազօջախները պետք է տեղադրվեն 2,2 մ և ավելի բարձրություն ունեցող խոհանոցներում, որոնք ունեն օդանցքով կամ բացվող փեղկով լուսամուտ և օդատար ուղի, իսկ դռան առկայության դեպքում դուռը ներքին մասում պետք է ունենա առնվազն 0.01մ2 բաց օդուղի կամ համապատասխան չափի օդի ներհոսքի անցք(եր) դռան կամ պատի ստորին հատվածքում՝ հատակին հնարավորինս մոտ: Խոհանոցի ծավալը պետք է կազմի առնվազն 15 մ3 չորս հրածորաններով գազօջախի դեպքում, 12 մ3 երեք հրածորաններով գազօջախի դեպքում և 8 մ3 երկու հրածորաններով գազօջախի դեպքում:
1) Շահագործվող բնակելի շենքերում, եթե դրանց առաստաղի բարձրությունը 2,2 մ-ից պակաս չէ և ծավալը համապատասխանում է նորմերին, ապա նման շենքերի խոհանոցներում գազօջախներ տեղադրվում են նաև հետևյալ դեպքերում՝
ա. օդաատար չունեցող խոհանոցներում, վերնափեղկի կամ բարդ փականով լուսամուտի առկայությամբ,
բ. առանց լուսամուտների խոհանոցներում, որոնք ունեն օդատար, այդ դեպքում վերնափեղկով լուսամուտներ պետք է լինեն հարակից ոչ բնակելի սենքերում, որոնք ունեն անմիջական կապ խոհանոցի հետ,
գ. անհատական օգտագործման միջանցքներում՝ այն պայմանով, որ դրանք ունենան լուսամուտներ վերնափեղկով, գազօջախի և դիմացի պատի միջև պետք է լինի առնվազն մեկ մետր տարածություն, միջանցքի պատերը և առաստաղը պետք է սվաղած լինեն, իսկ բնակելի սենքերն առանձնացված լինեն միջանցքից ամուր միջնապատերով և դռներով:
2) Շահագործվող բնակելի շենքերում թույլատրվում է գազօջախ տեղադրել նաև հետևյալ դեպքերում՝
ա. թեք առաստաղով խոհանոցներում, որոնց բարձրությունը միջնամասում պակաս չէ 2 մ-ից, ընդ որում՝ գազօջախը հարկավոր է տեղակայել խոհանոցի այն մասում, որտեղ նրա բարձրությունը պակաս չէ 2,2 մ-ից,
բ. 2,0-ից մինչև 2,2 մ բարձրություն ունեցող խոհանոցներում, եթե այդ սենքի ներքին ծավալը առնվազն 1,25 անգամ մեծ է սույն կետի առաջին պարբերությունով սահմանված ծավալներից:
3) Խոհանոցում նախկինում տեղադրված գազասարքերի ծխատար ուղիները, որոնք կապված չեն այլ ծխատար ուղիների հետ, կարող են օգտագործվել որպես օդատար:
50. Բնակելի շենքերից և առանձնատներից դուրս թույլատրվում է գազօջախների տեղադրումը ամառային խոհանոցներում կամ ծածկի տակ: Խոհանոցը պետք է ունենա միակողմանի պատվար: Ծածկի տակ գազօջախ տեղադրելու դեպքում պետք է բացառվի հրածորանների բոցի հանգումը քամու ազդեցության տակ:
51. Գազօջախների տեղադրման մասում փայտյա չսվաղված պատերը պետք է մեկուսացվեն սվաղով: Թույլատրվում է սվաղը փոխարինել 15 մմ հաստության և կավե լուծույթով տոգորած թաղիքով կամ այլ հրակայուն նյութով: Անշարժ գազօջախ տեղադրելիս պատերի մեկուսացումը պետք է կատարվի հատակից, իսկ շարժականը` տեղադրման մակարդակից և պետք է առնվազն 10 սմ գերազանցի գազօջախի չափերը բոլոր կողմերից, իսկ վերևից` առնվազն 80 սմ-ով:
1) Գազօջախի տեղադրման փայտյա հիմքը պետք է մեկուսացվի թաղիքով` ծածկված թերթապողպատով կամ ինչ-որ այլ չհրկիզվող նյութով:
52. Գազի բաց կամ կիսաբաց այրման խցով ջրատաքացուցիչները պետք է տեղադրվեն խոհանոցներում: Ջրատաքացուցիչների տեղադրման սենքերը, ինչպես նաև լոգասենյակները, որտեղ ջրատաքացուցիչներ տեղադրված էին նախկինում, պետք է ունենան օդատարներ, իսկ դռան առկայության դեպքում դուռը ներքին մասում պետք է ունենա առնվազն 0.02մ2 բաց օդուղի կամ համապատասխան չափի օդի ներհոսքի անցք(եր) դռան կամ պատի ստորին հատվածքում՝ հատակին հնարավորինս մոտ օդի ներհոսքը ապահովելու համար:
53. Լոգասենյակները, որոնցում տեղադրված են գազային վառելիքի փոխադրված արագային ջրատաքացուցիչները կամ սյունակաթսաները, պետք է ունենան առվազն 7,5 մ3 ծավալ: Այդ սենյակների դռները պետք է բացվեն դեպի դուրս:
54. Առանց տաք ջրամատակարարման բնակելի շենքերում, ինչպես նաև հինգից բարձր հարկայնության շենքերում ջրատաքացուցիչները տեղադրվում են՝ համաձայն Հայաստանի Հանրապետության կառավարության 2002 թվականի դեկտեմբերի 5-ի N 2024-Ն որոշման:
55. Արագային գազի ջրատաքացուցիչները հարկավոր է տեղադրել չայրվող պատերի մոտ` 2 սմ-ից ոչ մոտիկ:
1) Դժվարավառ պատերի մոտ գազի ջրատաքացուցիչներ տեղադրելու դեպքում դրանց միջև հեռավորությունը պետք է լինի 3 սմ-ից ոչ պակաս: Պատերը պետք է մեկուսացվեն թերթապողպատով, կամ 15 մմ հաստության և կավե լուծույթով տոգորված թաղիքով կամ այլ չհրկիզվող նյութով: Մեկուսիչ շերտը պետք է 10 սմ-ով գերազանցի ջրատաքացուցիչի չափերը: Ջնարակված սալիկներով պատված մակերեսները չեն մեկուսացվում:
56. Փոքրածավալ գազի ջեռուցման կաթսաները թույլատրվում է տեղադրել 2 մ-ից ոչ ցածր առաստաղով ոչ բնակելի սենքերում, որոնք ունեն օդատար և կտրվածք դռան և հատակի միջև` համաձայն սույն գլխի 52-րդ կետի պահանջներին:
1) Մինչև 30 ԿՎտ գումարային հզորությամբ գազօջախի հետ համատեղ բաց այրման խցով կաթսայի կամ անոթային ջրատաքացուցիչի տեղադրման դեպքում սենքի` խոհանոցի ծավալը պետք է լինի սույն գլխի 49-րդ կետի առաջին պարբերությունում նշված ծավալներից առնվազն 6 մ3-ով ավելի:
57. Միևնույն սենքում թույլատրվում է երկուսից ոչ ավելի անոթային ջրատաքացուցիչների կամ փոքրածավալ ջեռուցման կաթսաների տեղադրում:
1) Մեկ սարքի տեղադրման դեպքում սենքի ծավալը պետք է կազմի առնվազն 7,5 մ3, երկու սարքի դեպքում` 12 մ3:
2) Փակ այրման խցով գազասարքերի տեղադրման համար սենքի ծավալները չեն նորմավորվում:
58. Արագային (ջրատաքացուցիչներ և կենցաղային կաթսաներ) գազի ջրատաքացուցիչները, ցանկացած տիպի փոքրածավալ ջեռուցման կաթսաները, ինչպես նաև ջեռուցման և եփման վառարանները պետք է ունենան գազի մատակարարման ընդհատման, բոցի մարման կամ ծխանցքում անհրաժեշտ նոսրության բացակայության ժամանակ հրածորանների ավտոմատ անջատումն ապահովող սարքավորումներ:
59. Գազի արագային ջրատաքացուցիչները և փոքրածավալ ջեռուցման կաթսաները պետք է տեղադրվեն չհրկիզվող պատերի մոտ:
1) Փոքր հզորության կաթսայի կամ անոթային սյունակաթսա ջրատաքացուցիչի հնոցի դիմաց անհրաժեշտ է պահպանել 1 մ ազատ տարածություն:
60. Ջեռուցման կամ եփման վառարանների փոխադրումը գազային վառելիքի թույլատրվում է հետևյալ պայմաններում.
1) վառարանի հիմքը տեղադրվում է շենքի պատի մեջ ամուր կերպով լցափակած առանձին հիմքի կամ բարձակի վրա (ռելս, մետաղյա շվելեր, երկտավր հեծան),
2) վառարանները սարքին են, չունեն շարվածքի ճեղքեր և փլվածքներ,
3) ջեռուցման վառարանները չունեն սննդի պատրաստման համար նախատեսված ջեռոց և բաց հրածորաններ (գոյություն ունեցողները պետք է լցաշարված լինեն աղյուսով),
4) եփման վառարանի ջեռուցման վահանակի ծխապտույտների թիվը չի գերազանցում երեքը,
5) վառարանն ունի հերմետիկ հնոցային և փչման դռնակներ, բավարար թվով «մաքրումներ».
ա. վառարանները և դրանց ծխանցքերը պետք է համապատասխանեն քարե շինություններին ներկայացվող պահանջներին:
61. Բուխարիները գազային վառելիքի փոխադրելու դեպքում դրանց ծխահեռացման անցուղիները պետք է միացվեն հնոցային խցիկի վերին մասի հետ 15 մմ-ից ոչ պակաս տրամագծի խողովակով` հնոցում գազի հավանական կուտակումները բացառելու նպատակով:
62. Գազաֆիկացված վառարանների հնոցները, որպես կանոն, տեղադրվում են միջանցքների կամ այլ ոչ բնակելի սենքերի կողմից: Շահագործվող բնակելի շենքերում հնարավոր է հնոցների դռնակների տեղադրումը բնակելի սենյակների կողմից: Այդ դեպքում վառարանների գազամատակարարումը պետք է իրականացվի առանձին ճյուղավորումներով: Գազատարին միանալու տեղում դրանց վրա՝ բնակելի սենքերից դուրս պետք է տեղադրվի խցան/փական, որը վառարանը օգտագործելուց հետո պետք է փակել:
63. Գազաֆիկացված վառարանների հնոցների սենքերը պետք է ունենան օդատար կամ օդանցքով լուսամուտ և դուռ, որը բացվի դուրս, կամ նախամուտք: Հնոցի դիմաց պետք է լինի առնվազն 1 մ լայնության ազատ տարածություն:
64. Կենցաղային գազի սառնարանները, որպես կանոն, պետք է տեղադրվեն խոհանոցներում կամ որպես խոհանոց հարմարեցրած սենքերում, որոնք համապատասխանում են սույն ԱԿ-ի պայմաններին:
1) Թույլատրվում է կենցաղային գազի սառնարանների տեղադրումը օդափոխվող միջանցքներում, որոնք մեկուսացված են բնակելի սենքերից դռներով կամ շարժական միջնապատերով:
2) Սառնարանի և սենքի պատի միջև եղած տարածությունը պետք է լինի 5 սմ-ից ոչ պակաս:
65. Ջեռուցման գազի բուխարիները կամ օդաջեռուցիչները պետք է տեղադրվեն հետևյալ պահանջներին համապատասխան՝
1) սենքը պետք է ունենա արտածծիչ օդատար կամ վերնափեղկով լուսամուտ (նույնն է՝ բարդ փական).
2) բուխարիները և օդաջեռուցիչները պետք է լինեն գործարանային արտադրության.
3) գազայրիչային սարքավորումները պետք է ունենան անվտանգության ավտոմատ համակարգ.
4) պատերի վրա գազի բուխարիների տեղադրման դեպքում անհրաժեշտ է պահպանել սույն գլխի 55-րդ կետի պահանջները.
5) հեռավորությունը գազի բուխարուց մինչև կենցաղային օգտագործման իրերը պետք է լինի 0,75 մ-ից ոչ պակաս:
66. Գազի սարքերի և վառարանների այրման արգասիքների հեռացումը պետք է կատարվի ԳԲՀ անվտանգության և շահագործման կանոնների պահանջներին համապատասխան:
67. Շահագործվող շենքերում մեկ բնակարանում թույլատրվում է ջեռուցման վառարանի ծխանցքին միացնել մեկ արագային գազի ջրատաքացուցիչ կամ այլ գազի սարք` եթե ծխանցքի կտրվածքի մակերեսը բավարարում է այդ նպատակներին: Այդ դեպքում վառարանը և գազի սարքը պետք է օգտագործվեն տարբեր ժամանակ:
68. Արգելվում է ծխահեռացման խողովակների անցկացումը սարքերից և վառարաններից դեպի ծխանցքերը բնակելի սենյակների միջով: Չջեռուցվող սենքերով ծխահեռացման խողովակների անցկացման դեպքում վերջիններս պետք է ջերմամեկուսացվեն:
1) Միացման խողովակների հորիզոնական հատվածների գումարային երկարությունը պետք է կազմի 3 մ-ից ոչ ավելի:
2) Միացման խողովակները պետք է ունենան երեքից ոչ ավելի պտույտներ, որոնց կորացման շառավիղը պետք է լինի խողովակի տրամագծից ոչ պակաս:
69. Արգելվում է էլեկտրասնուցումից անջատել անվտանգության ազդանշանային համակարգը, ինչպես նաև բնակարանից դուրս գալուց միացված թողնել գազասարքերը ու սարքավորումները՝ բացառությամբ մշտական աշխատող և համապատասխան գազի հոսքի անջատման ավտոմատիկա ունեցող ջեռուցող սարքավորումների:
70. Շինություններում բալոնների տեղադրումով հեղուկ գազերի գազաբալոնային կայանքի կափույրը պետք է փակվի գազի սարքերի օգտագործման ավարտից հետո:
71. Գազի մատակարարման դադարեցման դեպքում գազի վառարանների, ջրատաքացուցիչների, գազօջախների և այլ սարքերի հրածորանների ծորակները պետք է անմիջապես փակվեն:
72. Գազի ջրատաքացուցիչների, վառարանների այրման արգասիքները ծխահեռացման ուղիներ արտամղվող այլ սարքերի յուրաքանչյուր օգտագործումից առաջ պետք է ստուգվի ծխանցքի քաշանքը: Քաշանքի ստուգումը կատարվում է սարքը միացնելուց առաջ և 3-5 րոպե հետո` տվյալ սարքի օգտագործման հրահանգներին համապատասխան: Քաշանքի բացակայության դեպքում սարքից օգտվելն արգելվում է:
73. Գազասարքերից օգտվելու ժամանակ արգելվում է փակել դռան ստորին մասի բացվածքը, որը ծառայում է գազի այրման համար անհրաժեշտ օդի ներհոսքի համար:
74. Շինությունները, որտեղ տեղադրված են գազի սարքավորումները, պետք է անընդհատ օդափոխվեն: Կտրականապես արգելվում է փակել օդափոխման համար նախատեսված ուղիների և օդանցքների ճաղավանդակները: Գազի սարքավորման երկարատև օգտագործման ժամանակ լուսամուտների օդանցքները կամ վերնափեղկերը պետք է բաց լինեն:
75. Շինության մեջ գազի հոտի առկայության դեպքում պետք է անմիջապես դադարեցնել գազի սարքավորումից օգտվելը, փակել գազի սարքավորումների բոլոր փականները, բացել դռներն ու լուսամուտները` շինության օդափոխման համար, կրակ չվառել, չծխել, չմիացնել և չանջատել էլեկտրական սարքավորումներ, չօգտագործել էլեկտրական զանգեր, շինության մեջ գտնվող մարդկանց հանել չգազավորված տարածք և կանչել վթարային ծառայություն:
76. Արգելվում է կրակ օգտագործել գազատարերից և սարքերից գազի արտահոսքը հայտնաբերելու համար: Գազատարերի հերմետիկության ստուգումը, ինչպես նաև շինություններում գազատարերից և սարքերից գազի արտահոսքի տեղերի հայտնաբերումը պետք է կատարվի հատուկ գազափնտրիչ սարքերի և (կամ) օճառային էմուլսիայի օգնությամբ:
77. Գազի սարքերի տեղաբաշխումը և տեղաշարժումը կարող է կատարվել միայն գազամատակարարող կազմակերպության կողմից:
78. Արգելվում է գազի սարքավորման և գազի բալոնների օգտագործումը նախադպրոցական տարիքի երեխաներին և գազի անվտանգ օգտագործման կանոնները չիմացող մարդկանց:
79. Շենքերում, որպես կանոն, պետք է տեղակայվեն նախկինում չտեղակայված (չօգտագործված) գազի սարքեր և արմատուրներ: Նախկինում օգտագործված (ապատեղակայված) սարքերի և արմատուրների կրկնակի տեղակայումը թույլատրվում է միայն դրանց լրիվ ծավալով փորձարկման դեպքում: Սույն նորմը վերաբերում է նաև նույն սեփականատիրոջը պատկանող գազի սարքի վերատեղակայմանը և նոր վայրում դրա տեղակայմանը:
80. Շենքերում տեղակայվող գազի սարքերը պետք է համապատասխանեն Եվրասիական տնտեսական հանձնաժողովի 2011 թվականի դեկտեմբերի 9-ի «Գազային վառելիքով աշխատող սարքերի անվտանգության մասին (ТР ТС 016/2011)» N 875 որոշմամբ սահմանված պահանջներին: Եթե գազի սարքի տեղակայման վերաբերյալ արտադրող կազմակերպության փաստաթղթերով սահմանված են սույն կանոնների պահանջներից տարբերվող կամ լրացուցիչ պահանջներ, ապա պետք է կատարվեն նրանք, որոնք ապահովում են անվտանգության ավելի բարձր մակարդակ:
81. Շենքերում թույլատրվում է կիրառել անվտանգության ապահովման ինքնաշխատ համակարգեր ունեցող «Ա», «Բ» և «Ց» տիպի գազի սարքեր՝ պայմանով, որ դրանց տեղակայման սենքերը համապատասխանում են սույն կանոնների և հրդեհային անվտանգության պահանջներին:
82. «Ա», «Բ» և «Ց» տիպի գազի սարքեր չի թույլատրվում տեղակայել այն սենքերում, որոնց աղմուկի և թրթռումների մակարդակը կարող է գերազանցել դրանց տեղակայման սենքերի համար սանիտարական նորմերով սահմանված մակարդակները:
83. Մինչև 60 կՎտ հզորության «Ց» տիպի գազի սարքերը (այսուհետ` կաթսաներ կամ ջերմագեներատորներ) թույլատրվում է տեղադրել խոհանոցում:
84. Ջերմագեներատորները պետք է տեղակայվեն ոչ բնակելի սենքում՝ պայմանով, որ դրանց գումարային ջերմային հզորությունը չպետք է գերազանցի 100 կՎտ-ը:
85. Առանձին կանգնած և ԲԲՇ-ներում գործող կազմակերպությունների, բնակելի բազմաբնակարան շենքերի, բնակարանների և առանձնատների նոր կառուցվող կամ վերակառուցվող գազասպառման համակարգերում կիրառվող ջեռուցման և տաք ջրամատակարարման համար թույլատրվում է կիրառել այրման փակ խցով հորիզոնական կամ ուղղաձիգ ծխատարներով գազի սարքեր (ջերմագեներատորներ): Այրման բաց խցով ջերմագեներատորները թույլատրվում է կիրառել փակ խցով սարքերի կիրառման անհնարինության դեպքերում: Ջերմագեներատորները, կոնվեկտիվ վառարանները և ուղղահոս ջրատաքացուցիչները պետք է բավարարեն հետևյալ պահանջները`
1) եթե շենքի տանիքը գտնվում է մերձակա պատնեշի քամու դիմհարի գոտում, ինչպես նաև 3 և ավելի հարկայնության բազմաբնակարան շենքերի սենքերում, պետք է կիրառվեն այրման փակ խցով ստիպողական մղումով «Ց12», «Ց13» կամ ստիպողական մղումով այրիչով «Բ13», «Բ22», «Բ23», կամ «Բ32», «Բ33» ենթատիպի գազի սարքեր, որոնք պետք է ունենան ծխագազերի ջերմաստիճանի կամ ճնշման հսկման ինքնաշխատ սարքեր.
2) եթե շենքը չի գտնվում մերձակա պատնեշի քամու դիմհարի գոտում, ապա «Բ11» ենթատիպի գազի սարքեր կարելի է կիրառել`
ա. մինչև 5-հարկանի շենքերի սենքերում՝ պայմանով, որ դրանք շենքի ներսում ունենան կառուցված տաք միջավայրով անցնող ծխատարներ,
բ. մինչև 2-հարկանի շենքերում՝ պայմանով, որ գազի սարքը միջին հզորությամբ աշխատելիս, ծխատարն աշխատում է «չոր» ռեժիմում («չոր» ռեժիմը ծխատարի այն ռեժիմն է, որի մեջ ջրային գոլորշիների կոնդենսացումը բացառվում է).
գ. «Ց» տիպի գազի սարքեր կարելի է կիրառել ցանկացած հարկայնության շենքերի սենքերում՝ պայմանով, որ դրանց տեղակայման սենքերը և ծխաօդատարների ելքերի դիրքը համապատասխանում են սույն կանոնների 3-րդ և 4-րդ բաժինների պահանջներին:
86. Կազմակերպությունների սենքերում տեղակայվող գազի սարքերը պետք է սարքավորված լինեն անվտանգության համակարգերով, ընդ որում՝ «Բ» տիպի գազի սարքերի սենքերը` բնական գազի և այլ վնասակար գազերի կոնցենտրացիայի վերահսկման համար:
87. Շահագործման մեջ գտնվող և նոր տեղակայվող բոլոր «Բ» տիպի գազի սարքերը, անկախ տեղակայման վայրից, պարտադիր պետք է ունենան բոցի վերահսկման` գազի ընդհատման վրա գործող ինքնաշխատ սարք: 11 կՎտ և ավելի մուտքային հզորության «Բ» տիպի գազի սարքերը (կոնվեկտիվ վառարանները) պետք է ունենան սարքի ելքում տեղակայված ծխագազերի ճնշման կամ ջերմաստիճանի հսկման ինքնաշխատ սարքվածքներ: Մինչև սույն կանոնների ընդունումը շահագործման մեջ գտնվող «Բ» տիպի գազի սարքերը (ջրատաքացուցիչները) և 11 կՎտ-ը գերազանցող հզորության կոնվեկտիվ վառարանները, որոնք չունեն ծխագազերի ճնշման կամ ջերմաստիճանի հսկման ինքնաշխատ սարքվածքներ, պետք է լրացուցիչ բավարարեն հետևյալ պայմանները`
1) 10 և բարձր հարկայնության ԲԲՇ-ների սենքում և անկախ հարկայնությունից` արագային ջրատաքացուցիչների տեղակայման սենքում լինի բնական գազի կոնցենտրացիայի վերահսկման տվիչից գազի մուտքի ընդհատման ինքնաշխատ սարքվածք` Հայաստանի Հանրապետության կառավարության 2007 թվականի փետրվարի 22-ի «Գազասպառման համակարգի շահագործման անվտանգության մակարդակի բարձրացման և Հայաստանի Հանրապետության կառավարության մի շարք որոշումներում լրացումներ կատարելու մասին» N 314-Ն որոշման համաձայն.
2) նվազ գործունակ անդամ ունեցող ընտանիքների բնակարանների գազի սարքերի տեղակայման սենքերում տեղակայված լինեն գազի անվտանգության սարքվածքներ, որոնց ծավալը համապատասխանում է Եվրասիական տնտեսական հանձնաժողովի 2011 թվականի դեկտեմբերի 9-ի «Գազային վառելիքով աշխատող սարքերի անվտանգության մասին (ТР ТС 016/2011)» N 875 որոշմամբ սահմանված պահանջներին:
88. Շահագործման մեջ գտնվող ԲԲՇ-ների գազաֆիկացման նախագծերը պետք է կազմվեն այնպես, որ առավելագույն ձևով հաշվի առնվեն առանձին բնակարաններում գազի տարբեր սարքերի տեղակայման թույլատրելի տարբերակները, այդ թվում` «Բ» և հորիզոնական ծխաօդատարներով «Ց» տիպի գազի սարքերի կիրառման ժամանակ:
89. 220 Վ լարումով էլեկտրակառավարում ունեցող գազի սարքի արտադրող կազմակերպության հրահանգով նախատեսված էլեկտրասնման լարման անվանական լարման արժեքը և թույլատրելի շեղումները պետք է համապատասխանեն էլեկտրամատակարարման ցանցի փաստացի լարումներին (ամենամեծ շեղումների դեպքերում): Էլեկտրամատակարարման ցանցի լարման արժեքի անթույլատրելի շեղումների դեպքում լրացուցիչ պետք է կիրառվեն լարման կայունացուցիչներ, եթե սարքը պարունակում է էլեկտրոնային կառավարման բլոկներ: Սնման 220 Վ էլեկտրական ցանցը պարտադիր պետք է ունենա պաշտպանական էլեկտրական ՊԵ (PE) կամ պաշտպանական էլեկտրական չեզոք ՊԵՆ (PEN) հաղորդալար: Եթե շենքի էլեկտրասնման մուտքային վահանակը չունի տեղական հուսալի հողակցում, ապա սարքի էլեկտրասնման գծի վրա պետք է տեղադրել դիֆերենցիալ հոսանքով գործարկվող սնման ինքնավար անջատման պաշտպանիչ սարք կամ լարման կայունացուցիչը պետք է ունենա նաև առաջնային և երկրորդային շղթաների էլեկտրական բաժանում:
90. Էլեկտրական սալիկներով համակցված լրակազմ ունեցող գազօջախների տեղակայման պայմանները պետք է բավարարեն տեխնիկական կանոնակարգերով սահմանված էլեկտրաանվտանգության պահանջները:
91. Տեղակայվող գազի սարքին մատակարարվող ջրի (կաթսաներ, ջրատաքացուցիչներ) անվանական ճնշումը և կոշտությունը չպետք է գերազանցեն գազի սարքի համար արտադրող կազմակերպության կողմից սահմանված առավելագույն ճնշմանը և կոշտությանը:
92. Գազի սարքերը պետք է ունենան արտադրող (մատակարարող) կազմակերպության սահմանած երաշխիքային ժամկետ: Սարքերը պետք է տեղակայվեն ու կարգաբերվեն՝ համաձայն արտադրող կազմակերպության հրահանգների, սույն կանոնների, այլ իրավական ակտերի, գազամատակարար կազմակերպության ստանդարտ ների պահանջների, ինչպես նաև տվյալ բնակարանի (ԲԲՇ-ի տարածքում տեղակայված կազմակերպության) և շենքի (ԲԲՇ-ի, առանձնատան, կազմակերպության անհատական շինության) մատակարարի հետ համաձայնեցված գազաֆիկացման նախագծին համապատասխան:
ԲԱԺԻՆ 3. ԳԱԶԻ ՍԱՐՔԵՐԻ ՏԵՂԱԿԱՅՄԱՆ ՍԵՆՔԵՐԻՆ ԱՌԱՋԱԴՐՎՈՂ ՊԱՀԱՆՋՆԵՐԸ
ԳԼՈՒԽ 9. ԸՆԴՀԱՆՈՒՐ ՊԱՀԱՆՋՆԵՐ
93. Գազի սարքերի տեղակայման սենքերը պետք է բավարարեն սույն գլխի պահանջները, ինչպես նաև սույն կանոնների 10-րդ, 11-րդ և 12-րդ գլուխներով սահմանված պահանջները: Գազի սարքերի տեղակայման պայմանները որոշվում են նաև սույն կանոնների 4-րդ բաժնով սահմանված` դրանց ծխատարների և ծխաօդատարների անվտանգ տեղակայման պահանջներով:
94. Գազաֆիկացված շենքերի և դրանց առանձին սենքերի օդափոխման համակարգերը պետք է ապահովեն`
1) բնական գազի սարքերի տեղակայման շենքերի ընդհանուր օգտագործման փակ տարածքների բնական կամ արհեստական օդափոխություն, որը գազի պատահական արտահոսքի դեպքում կանխում է բնական գազի կուտակումները վտանգավոր համարվող կոնցենտրացիաներով: Օդափոխության հաշվարկները (օդի մուտքը և ելքը, արտաքին միջավայրի և փակ տարածքի հաշվարկային ջերմաստիճանները, գազի արտահոսքի քանակը և այլն) կատարվում են տվյալ տարածքն առնվազն 20 րոպեում ամբողջովին օդափոխելու պայմանի դեպքում.
2) գազի սարքերի տեղակայման սենքում առնվազն 1 ժամում սենքի ծավալի օդափոխում, ընդ որում`
ա. գազի սարքի առավելագույն հզորությամբ օգտագործման դեպքում ածխածնի մոնօքսիդի պարունակությունն օդում չպետք է գերազանցի տվյալ նշանակության սենքերի համար սահմանված թույլատրելի մակարդակը,
բ. գազի պատահական արտահոսքի դեպքում բնական գազի կուտակումները չպետք է գերազանցեն վտանգավոր համարվող կոնցենտրացիաների մակարդակը: Բազմաբնակարան շենքերում «Ա» և «Բ» տիպի գազի սարքերով սենքերի օդի ելքի համակարգերը պետք է օդն արտանետեն արտաքին մթնոլորտ անհատական անցուղիներով, որոնք կապված չեն այլ սենքերի օդափոխման օդուղիների հետ:
95. Գազի սարքերը և դրանց ծխատարները (համակցված ծխաօդատարները) պետք է տեղակայվեն անվտանգության և հրդեհային կանոնների պահպանմամբ, պատից, տանիքի ծածկից և այլ հրդեհավտանգ տարրերից անվտանգ հեռավորությունների վրա, որոնք սահմանվում են սարքն արտադրող կազմակերպության տեղակայման հրահանգներով: Հրահանգների բացակայության դեպքում պետք է պահպանվեն հետևյալ պահանջները`
1) գազօջախների տեղադրման մասում այրվող նյութերով կառուցված կամ պատված պատի կից հատվածը, փայտյա չսվաղված պատերը, սկսած հատակից, պետք է մեկուսացվեն չայրվող նյութի շերտով (սվաղ, թերթապողպատ և այլն), որի չափերը որոշվում է նախագծով: Գազօջախի տեղադրման փայտյա հիմքը պետք է մեկուսացվի չայրվող նյութով.
2) հոսքային գազի ջրատաքացուցիչները պետք է տեղադրել չայրվող պատերի մոտ` 2 սմ-ից ոչ մոտիկ: Դժվարավառ պատերի մոտ գազի ջրատաքացուցիչներ տեղադրելու դեպքում դրանց միջև հեռավորությունը պետք է լինի 3 սմ-ից ոչ պակաս: Պատերը պետք է մեկուսացվեն չայրվող նյութով, որի չափերը որոշվում են նախագծով: Մեկուսիչ շերտի մակերեսը յուրաքանչյուր կողմից պետք է 10 սմ-ով գերազանցի ջրատաքացուցչի պատին ամրացվող մակերեսի չափերը: Ջնարակված սալիկներով պատված մակերեսները չեն մեկուսացվում:
ԳԼՈՒԽ 10. «Ա» ՏԻՊԻ ԳԱԶԻ ՍԱՐՔԵՐԻ ՏԵՂԱԿԱՅՄԱՆ ՍԵՆՔԵՐԸ
96. Մինչև 11 կՎտ ընդհանուր անվանական հզորության «Ա» տիպի գազի սարքեր կարող են տեղակայվել ոչ պակաս 2.2 մ բարձրություն ունեցող և ոչ պակաս 20 մ3 ծավալով սենքերում (բացառությամբ գազօջախների), որոնք ունեն դեպի դուրս կամ դեպի բնակարանի ննջարան (սպասարկման սպասասրահ, բուժսպասարկման սենյակ, մանկապարտեզի խաղասենյակ, քաղաքացիների հավաքման այլ վայր) չհանդիսացող սենք (միջանցք, ճաշասենյակ, պատշգամբ և այլն) բացվող դուռ կամ լուսամուտ, ընդ որում՝ դռան առկայության դեպքում դուռը ներքին մասում պետք է ունենա առնվազն 0.01մ2 բաց օդուղի կամ համապատասխան չափի օդի ներհոսքի անցք(եր) դռան կամ պատի ստորին հատվածքում՝ հատակին հնարավորինս մոտ, իսկ պատուհանը` բացվող փեղկ: Օդափոխման համակարգը պետք է համապատասխանի սույն կանոնների 9-րդ գլխի պահանջներին:
97. Եթե «Ա» տիպի գազի սարքը չունի բոցի մարման դեպքում գազի հոսքի դադարեցման ինքնաշխատ անջատիչ սարք, ապա սենքը պարտադիր պետք է ունենա, բացի սույն գլխի 96-րդ կետում նշվածից, նաև օդատար կամ սենքում պետք է տեղակայված լինի մեթանի կոնցենտրացիայի վերահսկման ազդանշանման սարք: Օդատարի առկայությունը պարտադիր է 6 և բարձր հարկայնության շենքերի համար` անկախ պաշտպանական սարքերի առկայությունից:
«Ա» տիպի գազի սարքի տեղակայման սենքում լրացուցիչ կարելի է տեղակայել «Ց» տիպի գազի սարք՝ առանց լրացուցիչ պահանջների սենքի ծավալի կամ օդափոխման համակարգերի նկատմամբ, եթե կատարված են 14-րդ գլխի պահանջները:
Մեկ սենքում կարելի է տեղակայել մեկական «Ա» և «Բ» տիպի գազի սարք, եթե պահպանվում են 100-րդ կետի պահանջները:
ԳԼՈՒԽ 11. «Բ» ՏԻՊԻ ԳԱԶԻ ՍԱՐՔԵՐԻ ՏԵՂԱԿԱՅՄԱՆ ՍԵՆՔԵՐԸ
98. «Բ» տիպի գազի սարքերը կարող են տեղակայվել այն սենքերում, որոնց ծավալները գազի սարքի հզորության հետ կազմում են հետևյալ հարաբերակցությունները`
1) սենքի յուրաքանչյուր 1մ3 ծավալին համապատասխանում է 1 կՎտ անվանական ջերմային հզորություն, եթե այրման համար օդը սենք է թափանցում արտաքինից (մթնոլորտից) մշտապես բաց օդանցքով, որի մակերեսը պետք է լինի ոչ պակաս 1x150 սմ2 կամ 2x75 սմ2.
2) սենքի յուրաքանչյուր 4 մ3 ծավալին համապատասխանում է 1 կՎտ անվանական ջերմային հզորություն, եթե այրման համար օդը գազի սարքի սենք է թափանցում շենքի արտաքին պատի վրա գտնվող դռնով կամ պատուհանով, որոնք կարելի է բացել.
3) սենքի յուրաքանչյուր 2 մ3 ծավալին համապատասխանում է 1 կՎտ անվանական ջերմային հզորություն, եթե այրման համար օդը գազի սարքի սենք է թափանցում արտաքին կարերով և արտաքինից օդի ներանցման բաց (չփակվող) օդատարով.
4) սենքի յուրաքանչյուր 1 մ3-ից պակաս ծավալին համապատասխանում է 1 կՎտ անվանական ջերմային հզորություն, եթե այրման համար օդը գազի սարքի սենք է թափանցում դրսից` արտաքին կարերով, և այլ սենքից 2x150 սմ2 բաց (չփակվող) օդատարով, որոնցից մեկը գտնվում է հատակի մոտ, մյուսը` առնվազն 1.8 մ բարձր.
5) սենքի յուրաքանչյուր 1 մ3-ից ավելի ծավալին համապատասխանում է 1 կՎտ անվանական ջերմային հզորություն, եթե այրման համար անհրաժեշտ օդը գազի սարքի սենք է թափանցում այլ սենքերից 1x150 սմ2 բաց (չփակվող) օդատարով.
6) «Բ1» ենթատիպի գազի սարքերը, անկախ սենքի ծավալից, կարող են տեղակայվել սենքում, եթե սենքը միացված է օդորակման գործող կենտրոնական համակարգին, իսկ աշխատած գազերը և գոլորշիները հեռացվում են միաժամանակ:
99. «Բ» տիպի գազի սարքերի տեղակայման սենքում օդաքարշ տեղակայելու դեպքում այն չպետք է սենքում ստեղծի օդի նոսրացում, որը կարող է ազդել սարքի աշխատանքի վրա: «Բ» տիպի գազի սարքերի տեղակայման սենքը պետք է ունենա դեպի արտաքին մթնոլորտ դուրս եկող օդատար, և դուռը ներքին մասում պետք է ունենա առնվազն 0.02 մ2 բաց օդուղի կամ համապատասխան չափի օդի ներհոսքի անցք(եր) դռան կամ պատի ստորին հատվածքում՝ հատակին հնարավորինս մոտ: «Բ» տիպի գազի սարքերի առանձին ենթատիպերի տեղակայման այլ պայմանները սահմանվում են գազի սարքեր արտադրող կազմակերպության հրահանգներով: «Բ» տիպի գազի սարքերի սենքերի օդափոխման համակարգերը պետք է բավարարեն նաև սույն կանոնների 9-րդ գլխի պահանջները:
100. Արգելվում է մեկ սենքում մեկից ավելի «Բ» տիպի գազի սարքի տեղակայումը: Մեկ սենքում կարելի է տեղակայել մեկական «Ա» և «Բ» տիպի գազի սարք, եթե՝
1) երկու գազի սարքերն էլ ունեն գազի մուտքի անջատման վրա գործող բոցի վերահսկման ինքնաշխատ համակարգեր.
2) առավելագույն հզորությամբ երկու գազի սարքերի միաժամանակյա աշխատանքի դեպքում ապահովվում են սույն գլխի 98-րդ կետի 1-ին ենթակետի պայմանները:
101. «Բ» տիպի գազի սարքի տեղակայման սենքում լրացուցիչ կարելի է տեղակայել «Ց» տիպի գազի սարք՝ առանց լրացուցիչ պահանջների սենքի ծավալի կամ օդափոխման համակարգերի նկատմամբ, եթե կատարված են 14-րդ գլխի պահանջները:
ԳԼՈՒԽ 12. «Ց» ՏԻՊԻ ԳԱԶԻ ՍԱՐՔԵՐԻ ՏԵՂԱԿԱՅՄԱՆ ՍԵՆՔԵՐԸ
102. «Ց» տիպի գազի սարքերի տեղակայման սենքերին առաջադրվում են հետևյալ պահանջները`
1) «Ց» տիպի գազի սարքերը, որոնք մակնշված են «X» նշանով (այրման արգասիքների ուղու համակարգի բարձրացված հերմետիկությունը բնութագրող նշան) կարող են տեղակայվել առանց սենքի ծավալի սահմանափակման և սենքի օդափոխության համակարգի նկատմամբ հատուկ պահանջների առաջադրման: «X» նշանով չմակնշված գազի սարքերի տեղակայման սենքերը պետք է ունենան միջավայրի հետ օդափոխման միջանցիկ անցք` 1x150 սմ2 կամ 2x 75 սմ2 կտրվածքով: Օդափոխման համակարգը պետք է համապատասխանի սույն կանոնների 14-րդ և 16-րդ գլուխների պահանջներին.
2) «Ց11» ենթատիպի գազի սարքերը կարող են տեղակայվել միայն սենքի արտաքին պատի վրա, նրանց հզորությունը չպետք է գերազանցի 7 կՎտ-ը՝ ջեռուցիչների համար և 28 կՎտ-ը՝ հոսքային ջրատաքացուցիչների համար: «Ց12» և «Ց13» ենթատիպի գազի սարքերը կարող են տեղակայվել ինչպես արտաքին պատի, այնպես էլ ներքին պատի վրա: Արտաքին պատի վրա տեղակայվողները պետք է ունենան ոչ ավելի, քան 11 կՎտ, իսկ ջրատաքացուցիչները` ոչ ավելի, քան 28 կՎտ անվանական հզորություն: Դրանց ծխաօդատարների ելքերը պետք է բավարարեն 17-րդ գլխի պահանջները:
ԲԱԺԻՆ 4. ԳԱԶԻ ՍԱՐՔԵՐԻ ԾԽԱՕԴԱՏԱՐ ԵՎ ԾԽԱՏԱՐ ՀԱՄԱԿԱՐԳԵՐԻՆ ԱՌԱՋԱԴՐՎՈՂ ՊԱՀԱՆՋՆԵՐԸ
ԳԼՈՒԽ 13. ԳԱԶԻ ՍԱՐՔԵՐԻ ԾԽԱՕԴԱՏԱՐ ԵՎ ԾԽԱՏԱՐ ՀԱՄԱԿԱՐԳԵՐԻ ԴԱՍԱԿԱՐԳՈՒՄԸ
103. Գազի սարքերի ծխաօդատար և ծխատար համակարգերը ներառում են`
1) ծխաօդատար համակարգեր են`
ա. ծխատարները,
բ. համակցված ծխաօդատարները,
գ. միացնող խողովակները, որոնք այրման արգասիքները սարքի ելքից տեղափոխում են մինչև ծխատարի ուղղաձիգ հատվածը,
դ. այրման համար օդի մատուցման սարքվածքները.
2) ծխատար համակարգեր են`
ա. ծխատարները,
բ. միացնող խողովակները, որոնք այրման արգասիքները սարքի ելքից տեղափոխում են մինչև ծխատարի ուղղաձիգ հատվածը:
104. Ծխաօդատար համակարգերը կարող են լինել`
1) գազի սարքերը և ծխաօդատար համակարգերը արտադրողի կողմից լրակազմվող և համատեղ տրամադրվող.
2) տարբեր արտադրողների կողմից արտադրվող և պատվիրատուի (հավաքակցողի) կողմից լրակազմվող:
105. Ծխաօդատարները, ծխատարները և դրանց համակարգերը կարող են շահագործվել հետևյալ ռեժիմներում`
1) ըստ ճնշման` նոսրացման կամ ճնշման տակ.
2) ըստ ջերմաստիճանի` չոր կամ թաց (խտուցքով):
106. Ծխաօդատար և ծխատար համակարգերը կարող են լինել`
1) անհատական, երբ յուրաքանչյուր սարք միացվում է անհատական ծխաօդատար համակարգի.
2) անհատական բնակարանային, երբ մեկ բնակարանում տեղակայված մեկից ավելի գազի սարքեր միացվում են մեկ ծխաօդատար կամ ծխատար համակարգի.
3) հավաքական, երբ նույն կամ տարբեր հարկերում գտնվող տարբեր բնակարանների գազի սարքերը միացվում են մեկ ծխաօդատար համակարգի:
107. Ծխաօդատար և ծխատար համակարգերի կառուցվածքը կարող է լինել`
1) միաշերտ.
2) բազմաշերտ:
108. Ծխաօդատար համակարգերը կարող են լինել`
1) համաառանցքային.
2) օդի մատուցման և ծխագազերի հեռացման առանձնացված ուղիներով:
ԳԼՈՒԽ 14. ԸՆԴՀԱՆՈՒՐ ՊԱՀԱՆՋՆԵՐԸ
109. Ծխաօդատարները և ծխատարները, ինչպես նաև դրանց լրակազմող մասերը պետք է կիրառվեն և հավաքակցվեն ըստ արտադրող կազմակերպության պայմանների և հրահանգների: «Բ» և «Ց» տիպի գազի սարքերի ուղղաձիգ ծխաօդատար համակարգերը պետք է ունենան`
1) մաքրման անցք.
2) լրացուցիչ օդի մատուցման սարքվածք` նոսրացմամբ աշխատող ծխատարների համար.
3) ծխագազերի խտուցքի հեռացման անցք` թաց ռեժիմով աշխատող ծխատարների համար:
110. Ծխաօդատար համակարգերը չպետք է նվազեցնեն շենքի և նրա առանձին սենքերի հրդեհային անվտանգության պայմանները` գազի սարքերի աշխատանքի բոլոր ռեժիմներում: Ծխաօդատարները ձեղնահարկեր, փայտյա միջնորմներ կամ ծածկեր հատելու դեպքերում պետք է ունենան հրակայուն մեկուսացում, որը բավարարում է հրդեհային անվտանգության պահանջները: Սենքի ներսում մետաղական ծխատար ները, որոնք կարող են հասանելի լինել պատահական հպման համար, պետք է ունենան ջերմամեկուսացում, որի արտաքին ջերմաստիճանը չպետք է գերազանցի 700C-ը:
111. Ծխատարների կառուցվածքը, չափերը, հորիզոնական և ուղղաձիգ հատվածների թույլատրելի չափերը և նրանց ելքի մասի դիրքը շենքի տանիքում պետք է համապատասխանեն գազի սարքն արտադրող կազմակերպության հրահանգներին, ինչպես նաև հետևյալ պահանջներին`
1) ծխատարները պետք է կառուցված լինեն թթվակայուն ջրանթափանց նյութերից, անհրաժեշտ մեխանիկական ամրությամբ, որը բացառում է դրա ճկվածքը կամ քայքայումն արտաքին ուժերի կամ սեփական կշռի ազդեցության տակ.
2) ծխատարների անկյունների առավելագույն քանակը և հորիզոնական մասի առավելագույն երկարությունը պետք է համապատասխանեն գազի սարքն արտադրող կազմակերպության հրահանգներին.
3) ծխատարների հորիզոնական բոլոր հատվածները պետք է ունենան 1% թեքություն դեպի գազի սարքը:
112. Շենքերում տեղակայված կազմակերպությունների գազի սարքերի ծխաօդատար համակարգերը պետք է առանձնացված լինեն բնակարանների ծխաօդատար համակարգից:
113. Ծխատարների գլխամասերը պետք է բավարարեն հետևյալ պայմանները`
1) դրանց կառուցվածքը պետք է բացառի ծխատարի մեջ որևէ մարմնի ընկնելը (օրինակ` թռչունների, աղբի և այլն).
2) ունենան ծխատարի կտրվածքի մակերեսից առնվազն կրկնակի կտրվածքի մակերես.
3) գլխամասի կառուցվածքը պետք է արգելի ծխատարի մեջ մթնոլորտային տեղումների ներթափանցումը.
4) գլխամասի կառուցվածքը պետք է ապահովի ծխագազերի ազատ արտանետումը ցանկացած եղանակի պայմաններում, այդ թվում`ցանկացած ուժի և ուղղության քամու դեպքում.
5) քամու դիմհարի գոտում տեղակայված ծխատարների գլխամասերը պետք է բավարարեն նաև սույն գլխի 117-րդ կետի պահանջները:
114. Շենքի կոնստրուկցիայի մաս կազմող ծխատարներին առաջադրվող պահանջները սահմանվում են շինարարական նորմատիվ ակտերով: Ծխաօդատարների կառուցման և հավաքակցման համար կիրառվող նյութերը պետք է ունենան բավարար մեխանիկական, ջերմային և կոռոզիոն կայունություն: Ծխատարների կտրվածքը պետք է լինի ոչ պակաս, քան սարքի ծխագազերի ելքի կտրվածքն է: Գազի սարքի ելքը ծխատարին միացնող խողովակի կտրվածքը պետք է հավասար լինի սարքի ելքի կտրվածքին: Ցանկացած տիպի ծխատարի (ծխաօդատարի) ելքը շենքի արտաքին մասի վրա պետք է լինի գետնի նիշից ոչ պակաս 2 մ բարձր:
115. Արգելվում է ծխատարի (ծխաօդատարի) անցկացումը բնակելի սենքերի միջով: Չջեռուցվող սենքերով խողովակների անցկացման դեպքում վերջիններս պետք է ջերմամեկուսացվեն:
116. Շենքի ներսով անցկացման դեպքում ծխաօդատարները և ծխատարները պետք է ունենան հերմետիկության բարձր աստիճան, իսկ ԵԱՏՄ 2011 թվականի դեկտեմբերի 9-ի N 875 որոշմամբ հաստատված՝ «Գազային վառելիքով աշխատող սարքա վորումների անվտանգության մասին» (ՄՄ ՏԿ 016/2011) պահանջներին համապատասխան՝ ունենան համապատասխանության գնահատման փաստաթուղթ և մակնշում: Չվկայագրված ծխաօդատարները և ծխատարները բնակելի սենքերով անցկացնելու դեպքում դրանք պետք է ենթարկված լինեն հերմետիկության փորձարկումների` 200 Պա ավելցուկային ճնշմամբ: Ոչ բնակելի սենքերով անցկացնելու դեպքում դրանք կարող են չենթարկվել հերմետիկության փորձարկումների, եթե աշխատում են նոսրացման տակ և անցնում են մշտապես օդափոխվող սենքերով: Ճնշման տակ աշխատող ծխաօդատարները և ծխատարները պետք է ենթարկվեն հերմետիկության փորձարկումների` անկախ դրանց տեղակայման վայրից: Նոսրացման տակ աշխատող ծխատարները կարող են չենթարկվել փորձարկումների ավելցուկային ճնշմամբ, եթե դրանց ելքերը գտնվում են քամու դիմհարի գոտուց դուրս:
117. Բնական քաշանքով աշխատող գազի սարքերի ծխատարների ելքերը պետք է գտնվեն քամու դիմհարի գոտուց դուրս: Քամու դիմհարի գոտին (որտեղ բարձրանում է քամու ճնշումը) բնութագրվում է հետևյալ կոորդինատներով`
1) ծխատարի ելքի հեռավորությունը պատնեշից պետք է լինի առնվազն 15 մ.
2) հորիզոնական հարթության վրա ծխատարի ելքի կտրվածքի հարթության կազմած անկյունը պատնեշի եզրերով անցնող հարթության նկատմամբ` 300 և ավելի.
3) ուղղաձիգ հարթության վրա ծխատարի ելքի կտրվածքի հարթության կազմած անկյունը պատնեշի վերին հորիզոնական հարթության նկատմամբ` 100 և ավելի:
118. Քամու դիմհարի գոտում գտնվող գազի սարքերի ծխատարները, որոնք չունեն ծխագազերի ջերմաստիճանի հսկման և գազի անջատման ինքնաշխատ սարքեր, մինչև գազի սարքի փոխարինումը ծխագազերի ջերմաստիճանի հսկման ավտոմատիկա ունեցող գազի սարքերով, պետք է ծխատարների ելքերի վրա տեղակայվեն համապատասխան կառուցվածքի գլխամասեր (դեֆլեկտորներ) կամ լրացուցիչ սարքավորվեն ծխագազերի ջերմաստիճանի հսկման և գազի անջատման ինքնաշխատ սարքերով, որոնք պետք է մշտապես գտնվեն աշխատանքի մեջ:
119. Անկախ սույն գլխի 117-րդ կետի պայմանների կատարումից, եթե բնական քաշանքով գազի սարքերի ծխատարի ելքը գտնվում է քամու դիմհարի գոտում, ապա օգտագործողը պետք է դադարեցնի դրանց աշխատանքը քամու ժամանակ:
120. «Բ» տիպի գազի սարքերի ծխահեռացման խողովակները պետք է տեղակայվեն`
1) 0,5 մ տանիքից բարձր, եթե դրանք գտնվում են տանիքի գագաթնագծից 1,5 մ ոչ ավելի հեռավորության վրա (հորիզոնագծով հաշված).
2) տանիքի գագաթնագծի հետ նույն մակարդակի վրա, եթե դրանք գտնվում են տանիքի գագաթնագծից 1,5-3,0 մ հեռավորության վրա.
3) տանիքի գագաթնագծից ցածր, բայց գագաթնագծից դեպի հորիզոն 100-ի տակ անցկացրած գծից ոչ ցածր, եթե դրանք գտնվում են տանիքի գագաթնագծից 3 մ-ից ավելի հեռավորության վրա: Բոլոր դեպքերում խողովակի բարձրությունը տանիքի մոտակա հատվածի համեմատ պետք է լինի 0,5 մ-ից ոչ պակաս, իսկ հարթ տանիքի դեպքում՝ ոչ պակաս 2 մետր: Եթե ծխահեռացման խողովակի հարևանությամբ գտնվում են շենքի ինչ-որ ավելի բարձր մասեր, շինություններ կամ ծառեր, ապա գազի սարքերի ծխահեռացման համակարգի խողովակները պետք է տեղակայվեն քամու դիմհարի գոտուց բարձր:
ԳԼՈՒԽ 15. «Բ1» ԵՎ «Բ11» ԵՆԹԱՏԻՊԻ ԳԱԶԻ ՍԱՐՔԵՐԻ ԾԽԱՏԱՐ ՈՒՂԻՆԵՐԸ
121. Ծխագազերի ջերմաստիճանի կամ ճնշման հսկման ինքնաշխատ սարքեր ունեցող «Բ» տիպի գազի սարքերի ծխատար ուղիները պետք է բավարարեն նաև սույն կանոնների 14-րդ գլխի ընդհանուր պահանջները: Եթե ծխատարը նախատեսված է «թաց» ռեժիմով շահագործման համար (ինչը նշանակում է, որ ծխատարի ելքում ծխագազերի ջերմաստիճանը կարող է լինել ցողի կետից ցածր), ապա ծխագազերի խտուցքի հեռացման սարքվածքի առկայությունը պարտադիր է, և այն պետք է տեղակայվի ծխատարի ստորին մասում` սպասարկման համար հարմար տեղում: Խտուցքի հեռացման սարքվածքը և ծխատարի մաքրման անցքը կարող են համատեղված լինել մեկ սարքվածքի մեջ: «Թաց» ռեժիմով աշխատող (նախագծով նախատեսված է ծխատարի աշխատանքը «թաց ռեժիմով», ինչը նշանակում է, որ ծխատարի մեջ գտնվող ջրային գոլորշիները կարող են կոնդենսանալ ծխատարի ներսում), ծխատարի շենքի ներսում գտնվող մասը պետք է աշխատի պարտադիր «չոր» ռեժիմում, նույնիսկ ամենաանբարենպաստ կլիմայական պայմանների դեպքերում: Մինչև սույն կանոններն ուժի մեջ մտնելը կառուցված ծխատարների, որոնք կառուցված են քիմիական տեսակետից թթուների և հիմքերի նկատմամբ ոչ բավարար կայունության նյութերով (սև մետաղ, ցինկապատ թիթեղ և այլն), շահագործման ընթացքում պետք է իրականացվի ծխատարի վիճակի պարբերական վերահսկողություն, որով կապահովվի ծխատարի վտանգավոր քայքայված մասերի պրոֆիլակտիկ զննումն ու փոխարինումը:
122. ԲԲՇ-ներում տարբեր սեփականատերերի պատկանող գազի սարքերի համար մեկ ծխատարի օգտագործումն արգելվում է, եթե ծխատարը նախագծված և կառուցված չէ համատեղ օգտագործման համար: Թույլատրվում է մեկ բնակարանի սահմաններում մեկ սեփականատիրոջ պատկանող և միայն վերջինիս կողմից օգտագործվող երկու գազի սարքերի միացումը մեկ անհատական ծխատարի` հետևյալ պայմանների համատեղ բավարարման դեպքում`
1) երկու գազի սարքերն էլ «Բ11» ենթատիպի են (բնական քաշանքով, ծխագազերի ջերմաստիճանի հսկման սարքվածքով), գազի սարքերից մեկը նախատեսված է կարճատև ռեժիմով աշխատանքի համար.
2) ծխատարը հաշվարկված է երկու գազի սարքերի միաժամանակյա աշխատանքի համար` միջին հզորության ռեժիմում.
3) ծխատարի ելքը չի գտնվում մերձակա պատնեշի (շենք, շինություն, բլուր և այլն) քամու դիմհարի գոտում.
4) գազի սարքերի ելքերը միացված են ընդհանուր ծխատարին, ոչ պակաս 30 սմ հեռավորությամբ:
123. Եթե գազի սարքի տեղակայման վերաբերյալ արտադրող կազմակերպության հրահանգով սահմանված չեն ծխատարի տեղակայման վերաբերյալ պահանջներ, ապա պետք է կատարվեն հետևյալ պահանջները`
1) ծխատարի հորիզոնական մասի երկարությունը չպետք է գերազանցի ուղղաձիգ հատվածի 0.25 մասին.
2) ծխատարի ուղղաձիգ մասի երկարությունը պետք է լինի 3 մ-ից ոչ պակաս, և լրացուցիչ 0.5 մ` ծխատարի յուրաքանչյուր 90 աստիճան թեքման համար:
124. «Բ» տիպի գազի սարքի (ուղղահոս ջրատաքացուցիչների) միացումը ծխահեռացման ուղիներին կատարվում է մետաղյա խողովակներով: Խողովակի ուղղահայաց հատվածի երկարությունը ծխահեռացման խողովակաոստի ստորին մասից մինչև հորիզոնական հատվածի առանցքը պետք է կազմի առնվազն 0,5 մ: Մինչև 2,7 մ բարձրությամբ սենքերի համար քաշանքի կայունարարով սարքերի համար թույլատրվում է ուղղահայաց հատվածի երկարության նվազեցում մինչև 0,25 մ, իսկ առանց քաշանքի կայունարարի` 0,15 մ:
125. Բազմաբնակարան շենքերում գտնվող կազմակերպությունների կողմից օգտագործվող տարածքներում, բնակարաններում, առանձնատներում և հասարակական նշանակության շենքերում շահագործվող գազի սարքավորման տեխնիկական սպասարկումը պետք է կատարվի ըստ սպասարկող կազմակերպության ստանդարտի պահանջների, որտեղ նշվում է սպասարկման աշխատանքների մանրակրկիտ բնութագիրը: Այդ շենքերում տեղադրված գազասարքերը պետք է սպասարկվեն առնվազն տարեկան երկու անգամ:
126. Ծխատարների և օդափոխության ուղիների ստուգման և մաքրման աշխատանքները կատարվում են հետևյալ պարբերականությամբ`
սեզոնային աշխատող գազի կայանքների (անկախ կառուցվածքից) ծխատար ուղիները` ջեռուցման սեզոնից առաջ,
աղյուսից, ասբոցեմենտյա, կավից, ինչպես նաև հրակայուն բետոնի բլոկներից պատրաստված ծխատարները և օդափոխության ուղիները` առնվազն տարին մեկ:
127. Ծխատարների և օդատար ուղիների առաջնային ստուգման (զննման) և մաքրման (մաքրության) փաստագրման ժամանակ ստուգվում է դրանց կառուցվածքի և նյութի համապատասխանությունը գործող նորմերին (ՀՀՇՆ 12.03.01-04), կեղտոտվածության (լցվածության) բացակայությունը, կիպությունը և առանձնացվածությունը, այրվող կառույցներից նրանց բաժանիչների առկայությունը և պիտանիությունը, նորմալ քաշի առկայությունը, գլխամասի դիրքի ճշտությունը տանիքի և մոտակա կառույցների նկատմամբ:
1) Պարբերական ստուգման (զննման) ենթակա են ծխատարների և օդատարների կառուցվածքը, նյութը և ջերմամեկուսացման ու բավարար քարշի առկայությունը: Նշված աշխատանքները ԲԲՇ-ների դեպքում իրականացվում են Հայաստանի Հանրապետության կառավարության 2007 թվականի հոկտեմբերի 4-ի N 1161-Ն որոշման պահանջների և սպասարկող կազմակերպության ստանդարտով սահմանված կարգով:
2) Կազմակերպությունների դեպքում՝
ա. եռամսյակում մեկ անգամ՝ հոսանուտային ջրատաքացուցիչների և ճաշարանային վառարանների աղյուսե ծխանցքները,
բ. տարին մեկ անգամ՝ ասբեստացեմենտային, կավե, ինչպես նաև ջերմակայուն բետոնե հատուկ բլոկներից պատրաստված ծխանցքները,
գ. տարին մեկ անգամ, ջեռուցման սեզոնից առաջ, ջեռուցման և ջեռուցման-եփման վառարանների, անոթային ջրատաքացուցիչների, բնակարանային ջեռուցող կաթսաների ծխանցքները,
դ. տարին մեկ անգամ՝ օդափոխման ուղեգծերը:
3) Ծխանցքների և օդափոխման ուղեգծերի ստուգումն իրականացնում են ծխնելուզագործական մասնագիտացված կազմակերպությունները՝ սեփականատիրոջ մասնակցությամբ: Ստուգման արդյունքները ձևակերպվում են կազմակերպության ստանդարտով սահմանված ձևի ակտով, ակտի օրինակը վերահսկման համար ներկայացվում է գազամատակարար կազմակերպությանը, նշված ակտը չներկայացվելու դեպքում գազամատակարարող կազմակերպությունն իրավունք ունի դադարեցնելու գազամատակարարումը:
128. Ծխատարների առաջնային, ինչպես նաև նորոգումից հետո ստուգումը պետք է իրականացնի ստուգող ծխնելուզագործական մասնագիտացված կազմակերպությունը համատիրության կամ սեփականատիրոջ ներկայացուցչի մասնակցությամբ: Արդյունքները ձևակերպվում են ակտով:
129. Եթե հայտնաբերվի, որ ծխատարները և օդատարները պիտանի չեն հետագա շահագործման համար, ապա ստուգող ծխնելուզագործական մասնագիտացված կազմակերպության ներկայացուցիչը պարտավոր է գրավոր զգուշացնել սպառողին (ստորագրությամբ) գազի սարքերի օգտագործման վտանգավորության մասին: Դրա հետ միասին ստուգման ակտերն անհապաղ պետք է ներկայացվեն բնական գազ մատակարարող կազմակերպությանը՝ գազի սարքերն անջատելու միջոցառում ներ ձեռնարկելու համար:
130. Քաղաքացիների անձնական սեփականություն հանդիսացող շենքերում կամ տարածքներում կրկնակի ստուգման, ծխատար և օդատար ուղիների մաքրման պատասխանատվություն կրում են սեփականատերերը:
131. Տեխնիկական սպասարկող կազմակերպությունը ձմռանը յուրաքանչյուր շրջայցի ժամանակ պետք է կատարի ծխատարների գլխամասի տեսազննում` դրանց սառցակալումը բացառելու նպատակով, և արդյունքների մասին բանավոր հայտնի սեփականատիրոջը:
132. Շենքերի ծխատարների և օդատարների հիմնանորոգման աշխատանքները սկսելուց առաջ համատիրությունները և սեփականատերերը պետք է գազի տնտեսության կազմակերպությանը գրավոր ծանուցեն այդ մասին` գազի սարքերը գազամատակարարման համակարգից անջատելու համար: Յուրաքանչյուր նորոգումից հետո ծխատարները ենթակա են արտահերթ ստուգման և մաքրման սույն կանոնների պահանջներին համապատասխան:
ԳԼՈՒԽ 16. «Ց» ՏԻՊԻ ԵՎ «Բ13», «Բ22», «Բ23» ԵՆԹԱՏԻՊԵՐԻ ԳԱԶԻ ՍԱՐՔԵՐԻ ԾԽԱՏԱՐ ԱՆՑՈՒՂԻՆԵՐԸ (ԾԽԱՕԴԱՏԱՐՆԵՐԸ)
133. Սույն կանոնների սույն գլուխով սահմանվում են «Բ13», «Բ22», «Բ23» ենթատիպերի և «Ց» տիպի մինչև 50 կՎտ հզորության գազի սարքերի համառանցքային հորիզոնական ծխաօդատարների կամ ծխատարների (այսուհետ` ծխաօդատարներ) ելքը ԲԲՇ-ի արտաքին պատի (ճակատի) վրա դուրս հանվող ծխաօդատարների տեղակայման պայմանները` ելնելով սարքի անվտանգության ապահովման, ինչպես նաև մարդկանց գտնվելու վայրերում արտաքին մթնոլորտային օդի մեջ այրման վնասակար արգասիքների կոնցենտրացիայի` Հայաստանի Հանրապետության կառավարության 2006 թվականի փետրվարի 2-ի N 160-Ն որոշման N 1 հավելվածով սահմանված սահմանային թույլատրելի կոնցենտրացիաները չգերազանցելու պայմանից: Այրման արգասիքների հեռացման այս եղանակը կիրառվում է, եթե այլ եղանակներ տեխնիկապես իրագործելի չեն: Հորիզոնական ծխաօդատարները կարող են միացվել նաև կոլեկտիվ ծխատարներին (միացման սխեմաները նշված են նկար 10ում և նկար 11-ում): Ծխաօդատարների միացման այս սխեմաների դեպքում կոլեկտիվ ծխատարների հուսալի և անվտանգ աշխատանքն ապահովելու նպատակով դրանք պետք է պատրաստվեն չժանգոտվող պողպատից: «Ց11» ենթատիպի մինչև 7 կՎտ հզորության ջեռուցիչների, ինչպես նաև մինչև 28 կՎտ հզորության կարճատև գործողության հոսքային ջրատաքացուցիչների կիրառման դեպքում շենքի ճակատի վրա ծխաօդատարների ելքի տեղակայման տեղի համար արտանետումների տեսակետից սահմանափակումներ չեն սահմանվում: Գազի սարքի հզորությունը 50 կՎտ-ն գերազանցելու դեպքերում գազի սարքի տեղակայման պայմանները պետք է որոշվեն նախագծով:
134. Սույն գլխի պահանջները տարածվում են միայն բնակարանները տարբեր սեփականատերերի պատկանող ԲԲՇ-ների վրա: Եթե շենքն առանձնացված է` շենքի լուսանցիկ հեռավորությունը այլ բնակելի կառույցներից կազմում է ոչ պակաս շենքի կամ կառույցի բարձրությունից (որը ավելի մեծ է), պատկանում է մեկ սեփականատիրոջ և այնտեղ բնակվում է միայն սեփականատերը, ապա նա իրավունք ունի իր ընտրությամբ որոշելու ծխաօդատարների ելքի տեղակայման տեղը:
135. Ծխաօդատարները և նրանց միացման հանգույցները հանդիսանում են գազի սարքի բաղկացուցիչ մասը և պետք է լրակազմված լինեն գազի սարքն արտադրող կազմակերպության կողմից: Արգելվում է ոչ լրակազմ հանգույցների կիրառումը ծխաօդատար համակարգի հավաքակցման համար:
136. Սույն գլխի պահանջների համաձայն կառուցվող ծխաօդատարները պետք է նախագծվեն և կառուցվեն այնպես, որ դրանք շահագործվեն բացառապես «չոր» ռեժիմում: Շահագործման ընթացքում դրանց արտաքին և ներքին մակերևույթների վրա խտուցք չպետք է առաջանա:
137. Գազի սարքի ծխաօդատարի արտանցումը միշտ պետք է լինի շենքի արտաքին պատի մակերևույթից դուրս: Ծայրապանակի երկարացում (օրինակ՝ ծխաօդատարի անբավարար երկարության դեպքում) պետք է իրականացված լինի միայն գազի սարքերն արտադրող կազմակերպության տեխնիկական անձնագրի պահանջերի համաձայն:
138. Օդի ներծծում և արտածում չի թույլատրվում իրականացնել`
1) անցուղիներում և նրբանցքներում.
2) նեղ (մեծամասամբ ոչ անցումային) փողոցներում, որտեղ օդափոխության պայմանները դժվարացած են, կամ էլ շենքերի վերին մասերում, որտեղ օդափոխությունը և այրման արգասիքների ցրումը կարող են դժվարացնել զանազան խոչընդոտները, պատշգամբները, ելուստները, ջրհորդանները և այլն.
3) շենքերի բակային ճակատների անկյունների մոտ, որտեղ չկան այրման արգասիքների ցրման կամ օդի ներծծման համար բավարար պայմաններ.
4) օդափոխության հորաններում և լուսավորության որմնաբացվածքներում.
5) լոջիաներում, պատշգամբներում, սրահներում.
6) պայթյունավտանգ շինություններում կամ այն տեղերի մոտակայքում, որտեղ հավաքվում, արտադրվում կամ էլ կարող են հայտնվել դյուրավառ և պայթյունավտանգ նյութեր.
7) գետնի մակերևույթից նվազագույնը 0.3 մ հեռավորության վրա կամ էլ հորիզոնական քիվից նվազագույնը 0.3 մ բարձրության վրա (այն չափվում է արտանցման ստորին ծայրից): Եթե օդի մատուցման կամ այրման արգասիքների հեռացման համար օդամուղ ունեցող խողովակի ելքը գտնվում է հանրությանը մատչելի տարածքում, ապա այն պետք է լինի ոչ պակաս 2 մ բարձրության վրա.
8) իրար դեմ գտնվող շենքերի ճակատների վրա (թաղամասի ներսում, նեղ փողոցներում), եթե շենքերի հեռավորությունը փոքր է շենքերի միջին բարձրությունից: Եթե տվյալ հեռավորությունը փոքր է երկու շենքերի միջին բարձրությունից, ապա արտանցումը հնարավոր է տեղադրել միայն երրորդ հարկից սկսած` հաշված գետնի մակերևույթից:
139. Սույն գլխի 138-րդ կետում նշված չափերը հնարավոր է նվազեցնել կամ ավելացնել` կախված գազի սարքերի անվանական ջերմային արտադրողականությունից:
140. Գազի սարքերի յուրաքանչյուր տեղադրում նախագծային փաստաթղթերի մեջ պետք է լրացվի ծխաօդատարի ելքերի պաշտպանման գոտիների նշանակմամբ: Նշված սխեմայով պետք է հնարավոր լինի տեսնել դրանց դիրքը մյուս ելքերի, պատուհանների, դռների, որմնաբացվածքների և այլնի նկատմամբ:
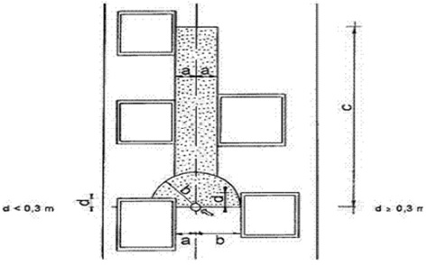
141. Գազի սարքերի ծխատարների ելքերի (արտանցումների) տեղակայման հատուկ դեպքերն են`
1) շենքի այրվող նյութերով կառուցված մասերից հեռավորությունները`
ա. այրման արգասիքները հեռացնող սարքվածքների հեռավորությունը շենքի այրվող նյութերով կառուցված մասերից պետք է լինի ոչ պակաս 10 սմ, որը պետք է ապահովվի պահանգների միջոցով: Միջանկյալ տարածքը պետք է լցվի չայրվող և չձևախախտվող, ցածր ջերմահաղորդականության շինարարական նյութերով,
բ. նախորդում տրված հեռավորությունը պարտադիր չէ, եթե սարքի անվանական հզորության դեպքում շենքի այրվող նյութերով կառուցված մասերի ջերմաստիճանը չի գերազանցի 850C.
2) հեռավորությունը ելքից մինչև շենքի այրվող նյութերով կառուցված ցցուն մասերը`
ա. հեռավորությունը դեպի վերև` 1.5 մ: Եթե դրանք այրվելուց պաշտպանված են օդային տարածքով և չայրվող շինարարական նյութերով, ապա հեռավորությունը կարելի է նվազեցնել մինչև 0.5 մ,
բ. հորիզոնական հեռավորությունը և դեպի ներքև հեռավորությունը` 0.5 մ,
գ. շենքի դիմացի մասերից` 1.0 մ.
3) պաշտպանություն կողմնակի վնասվածքներից: Եթե ելքը տեղակայված է հանրությանը մատչելի տարածքում 2.0 մ և պակաս բարձրության վրա, որտեղ հնարավոր է դրան վնասվածք պատճառվել, ապա այն պետք է ունենա ամուր, հարվածի նկատմամբ կայուն պաշտպանիչ մաս.
4) հեղուկ կամ գազային վառելիքալցակայաններին մոտ գտնվող ելքեր`
ա. ելքի հորիզոնական հեռավորությունը վառելիքի զետեղարաններից և լցավորման սյուներից պետք է լինի ոչ պակաս 5.0 մ,
բ. եթե ելքը գտնվում է 3.0 մ և ավելի բարձրության վրա, ապա նշված հեռավորությունը կարելի է նվազեցնել հրդեհային անվտանգության հսկողության մարմինների համաձայնությամբ:
142. Օդի հարկադրական մատուցմամբ այրիչներով կամ այրման արգասիքների հարկադրական արտանցումով «Բ» և «Ց» տիպի մինչև 25 կՎտ հզորության գազի սարքերի ելքերի տարբերակները և նրանց նկատմամբ հիմնական պահանջներն են`
1) պաշտպանման գոտին հարթ ճակատի վրա միակ ելքի դեպքում, որի տեղակայման չափերը ցույց են տրված N 1 նկարում, որտեղ արտանցման ուղղաձիգ առանցքից` a=0.5մ լայնությամբ, b =1.0 մ շառավղով, c= 5.0 մ բարձրությամբ: Եթե ելքի հորիզոնական առանցքը գտնվում է պատուհանի կարանի վերևի ծայրից 0.3 մ կամ ավելի d հեռավորության վրա, ապա b շառավղով ստեղծված գոտին չպետք է գտնվի որմնաբացվածքների մակերևույթի վրա: Եթե d հեռավորությունը պատուհանի վերին կարանից 0.3 մ-ից փոքր է, ապա b շառավղով սահմանափակված գոտին կարող է գտնվել պատուհանների և դռների մակերևույթի վրա, սակայն ոչ ավելի, քան արտանցումից a հեռավորության վրա: Ստեղծված գոտիները (բացառությամբ սույն կետի 2-րդ ենթակետում ցույց տրված դեպքի) չպետք է ներառեն այն տեղերը, որտեղ ենթադրվում է մարդկանց գտնվելը, օրինակ` պատշգամբները, լոջիաները և այլն.
→ ծխաօդատարի ելք
Նկար 1. Պաշտպանման գոտին հարթ ճակատի վրա` միակ ելքի դեպքում
2) պաշտպանման գոտին հարթ ճակատի վրա համատեղ ելքերի դեպքում, որի տեղակայման չափերը ցույց է տրված N 2 նկարում:
→ ծխաօդատարի ելք
Նկար 2. Պաշտպանման գոտին հարթ ճակատի վրա` համատեղ ելքերի դեպքում
Հեռավորությունը հարթ ճակատի վրա ելքերի հորիզոնական համատեղ տեղադրման դեպքում a =1.5 մ, g = 5.0 մ, c = 5.0 մ: Եթե g հեռավորությունը ավելի փոքր է, քան 5 մ-ը, տեղի է ունենում գոտիների վրածածկ: Ընդհանուր շրջակա մակերեսը (գոտին) պետք է պահպանվի: Օրինակ` g հեռավորությունը 4 մ-ով փոքրանալու դեպքում սահմանված a հեռավորությունը երկու կողմերում էլ ավելացվում է 0.5 մ-ով.
3) պաշտպանման գոտին հարթ ճակատի վրա, երբ ելքերը փոխադարձաբար տեղակայված են հորիզոնական և ուղղաձիգ ուղղություններով: Այս դեպքում (տե՛ս նկար 3) a0 հեռավորությունը հավասարվում է X=1.0 մ, a0=1.2 մ, a=0.5 մ, X=2.0 մ, a0=1.0 մ, d < 0.3 մ, X=3.0 մ, a0=0.75 մ, X=4.0 մ, a0=0.6 մ, X=5.0 մ, a0 =0.5 մ: Եթե X-ը փոքր, 1.0 մ-ից, ապա գործում են 2-րդ ենթակետի նորմերը.
→ ծխաօդատարի ելք
Նկար 3. Պաշտպանման գոտին հարթ ճակատի վրա, երբ ելքերը փոխադարձաբար տեղակայված են հորիզոնական և ուղղաձիգ ուղղություններով
Ելքերի նվազագույն հեռավորությունը հարթ ճակատի վրա ուղղաձիգ և հորիզոնական ուղղությամբ տեղադրվելու դեպքում a=0.5 մ, b=1.0 մ, c=5.0 մ.
4) պաշտպանման գոտին հարթ ճակատի վրա, ելքերի համատեղ հարթ ճակատի վրա ուղղաձիգ տեղադրման դեպքում`
Համատեղ ելքերը հարթ ճակատի վրա ուղղաձիգ տեղադրման դեպքում ցույց են տրված N 4 նկարում: Ելքերի նվազագույն հեռավորությունը հարթ ճակատի վրա ուղղաձիգ տեղադրվելու դեպքում a2 =0.5 մ, b=1.0 մ, c=5.0 մ: Երբ x=5.0 մ, a1 =0.5 մ, x=4.0 մ, a1 =0.6 մ, x=3.0 մ, a1 =0.75 մ, x=2.0 մ, a1=1.0 մ, x=1.0 մ, a1=1.1 մ x-ը 1.0 մ-ից փոքր հեռավորությունների դեպքում գազի սարքերի հզորությունները գումարվում են, և այն չպետք է գերազանցի 50 կՎտ-ը, իսկ a հեռավորությունը երկու արտանցումների համար որոշվում է սույն կանոնների 145-րդ կետի համաձայն.
→ ծխաօդատարի ելք
Նկար 4. Պաշտպանման գոտին հարթ ճակատի վրա` ելքերի համատեղ հարթ ճակատի վրա ուղղաձիգ տեղադրման դեպքում
5) պաշտպանման գոտին հարթ ճակատի վրա լայնական ճակատի մոտակայքում առանձին ելքի դեպքում: Ելքը հարթ ճակատի վրա լայնական ճակատի հարևանությամբ որմնաբացվածքների դեպքում, որոնք ունեն f=0,5 մ և ավելի լայնություն, պատկերված է N 5 նկարում:
→ ծխաօդատարի ելք
Նկար 5. Պաշտպանման գոտին հարթ ճակատի վրա` լայնական ճակատի մոտակայքում առանձին ելքի դեպքում
Հարթ ճակատի արտանցումից նվազագույն հեռավորության վրա` ընդլայնական ճակատի հետ հարևանությամբ, որի մեջ գտնվում են որմնաբացվածքները` a=0.5 մ, b=1.0 մ, c=5.0 մ, e=2.5 մ, f=0.5 մ: Եթե հարևան ընդլայնական ճակատի վրա որմնաբացվածքներ չկան, ապա հնարավոր է e հեռավորությունը նվազեցնել մինչև 1 մ: Երբ f հեռավորությունը փոքր է 0.5 մ-ից, հեռավորություններն այնպիսին են, ինչպես և հարթ ճակատի վրա` արտանցման դեպքում.
6) պաշտպանման գոտին ելուստներով ճակատի վրա առանձին ելքի դեպքում: Առանձին ելք ելուստներով ճակատի վրա ցույց է տրված N 6 նկարում: Ելուստներով ճակատի վրա առանձին ելքի նվազագույն հեռավորություններն են` a=0.75 մ, b=1.0 մ, c= 5.0 մ:
→ ծխաօդատարի ելք
Նկար 6. Պաշտպանման գոտին ելուստներով ճակատի վրա` առանձին ելքի դեպքում
Եթե ճակատի ելուստը (ելուստի հաստությունը) 0.5 մ-ից փոքր է, ապա նվազագույն հեռավորություններն են` a= 0.5 մ, b=1.0 մ, c=5.0 մ.
7) պաշտպանման գոտին ելուստներով ճակատի վրա համատեղ ելքերի վրա հորիզոնական տեղադրման դեպքում`
Համատեղ ելքերը ելուստներով ճակատի վրա հորիզոնական տեղադրման դեպքում ցույց են տրված N 7 նկարում: Նվազագույն հեռավորությունը համատեղ ելքերով ելուստներով ճակատի վրա հորիզոնական տեղադրման դեպքում a= 2.0 մ, c=5.0 մ, g=5.0 մ:
→ ծխաօդատարի ելք
Նկար 7. Պաշտպանման գոտին ելուստներով ճակատի վրա` ելքերի համատեղ հորիզոնական տեղադրման դեպքում
Եթե g հեռավորությունը ելուստների միջև 5.0 մ-ից փոքր է, ապա գոտիների վրածածկ է տեղի ունենում: Ընդհանուր շրջակա մակերևույթը (գոտին) պետք է պահպանվի: Օրինակ` g հեռավորությունը 4.0 մ-ով փոքրացնելու դեպքում a-ն մեծանում է 0.5 մ-ով երկու կողմից էլ: Եթե ճակատի ելուստը (ելուստի հաստությունը) 0.5 մ-ից պակաս է, ապա նվազագույն հեռավորությունները հավասար են հարթ ճակատի համար հեռավորություններին` 2-րդ ենթակետի համաձայն.
8) հորիզոնական տեղադրման դեպքում համատեղ ելք ելուստներով ճակատի և ընդլայնական ճակատի առկայությամբ. ելքերը ելուստներով ճակատի և ընդլայնական ճակատի միջև հորիզոնական տեղադրման դեպքում տեղադրվում են 5-րդ ենթակետում ցույց տրված սկզբունքների համաձայն.
9) եթե ճակատի վրա գտնվում են բաց և փակ պատշգամբներ և այլ մասեր, բաց կամ փակ ճաղաշարերով, ապա ելքը չպետք է գտնվի 1.5 մ-ից փոքր հեռավորության վրա պատշգամբի, լոջիայի և այլնի ծայրից և պատշգամբի, լոջիայի և այլնի հատակի մակարդակից ավելի ցածր` 5.0 մ-ից ավելի փոքր հեռավորության վրա կամ 2.5 մ այդ մակարդակից վերև հեռավորության վրա (տե՛ս նկար 8):
→ ծխաօդատարի ելք
Նկար 8. Պաշտպանման գոտին շենքի ճակատի վրա, երբ շենքի ճակատի վրա գտնվում են բաց և փակ պատշգամբներ և այլ մասեր` բաց կամ փակ ճաղաշարերով
143. Մինչև 7 կՎտ անվանական ջերմային հզորությամբ գազի սարքերի ելքերի վերաբերյալ (մթնոլորտային այրիչով և այրման արգասիքների բնական արտամղմամբ) հիմնական տեխնիկական պահանջներն են`
1) ելքերի տեղադրման դեպքում պետք է պահպանվի նրանց միջև հեռավորությունն առնվազն. 2.0 մ հորիզոնական ուղղությամբ, 2.5 մ ուղղաձիգ ուղղությամբ.
2) ելքը հնարավոր է տեղադրել պատուհանի բացվող մասի ներքևի ծայրի տակ (քիվապատ) ուղղաձիգ ուղղությամբ նվազագույնը 0.3 մ հեռավորության վրա.
3) ելքերը գետնի մակերևույթից ցածր տեղերում պետք է լինեն առնվազն 0.5 մx1.0 մ չափսերով հորանի մեջ, որը պետք է վերջանա արտաքին տարածքում: Եթե հորանը փակ է վանդակով, ապա բաց անցամասն իր կտրվածքով պետք է լինի հորիզոնական կտրվածքի 70 տոկոսից ոչ փոքր: Ելքը չպետք է տեղադրված լինի 4.0 մ-ից ավելի ցածր հորանի վերին ծայրից և ոչ պակաս, քան 0.3 մ դրա հատակից վերև: Հորանի հատակը պետք է ջրազրկվի, դրան պետք է ապահովվի մատչելիություն` հսկողության համար, որպեսզի խոչընդոտներ չառաջանան այրման արգասիքների հեռացման կամ էլ օդի մատակարարման համար, օրինակ` անմաքրությունների կուտակման, թափված տերևների և այլնի համար: Հորանի մեջ չպետք է լինեն բաց կամ բացվող որմնաբացվածքներ: Մեկ հորանում կարող է տեղադրվել միայն մեկ սարքի ելք:
144. Արտանցումների տեղակայման հատուկ դեպքերը, որոնք ցույց չեն տրված այս գլխում, դիտարկվում են առանձին արտանցումների սկզբունքների կիրառմամբ սույն կանոնների 137-րդ կետին համապատասխան:
145. 50 կՎտ-ից փոքր անվանական ջերմային հզորությամբ գազի սարքերի` սույն գլխի 142-րդ կետում նշված հեռավորությունները տրված են 25 կՎտ անվանական հզորության գազի սարքերի համար: Այլ հզորության գազի սարքերի կիրառման դեպքերում հեռավորությունները մեծացվում (փոքրացվում) են գծային եղանակով` ըստ N 9 նկարում նշված դիագրամի:
Օրինակներ`
Հետևյալ անվանական հզորությամբ գազի սարքերի ելքերի համար`
1) 25 կՎտ, գործում են սույն կանոնների 142-րդ կետում նշված հեռավորությունների մեծությունները.
2) 7 կՎտ և ավելի փոքր հեռավորություններ, սույն կանոնների 142-րդ կետում նշվածները նվազեցնել մինչև 45 տոկոսը.
3) 10 կՎտ, հնարավոր հեռավորությունները, որոնք նշված են սույն կանոնների 142րդ կետում փոքրացնել մինչև մոտավորապես 54 տոկոսը.
4) 20 կՎտ, հնարավոր հեռավորությունները, որոնք նշված են սույն կանոնների 142 րդ կետում փոքրացնել մինչև մոտավորապես 84 տոկոսը.
5) 40 կՎտ, հնարավոր հեռավորությունները, որոնք նշված են սույն կանոնների 142 րդ կետում մեծացնել մինչև մոտավորապես 146 տոկոսը.
6) 50 կՎտ հնարավոր հեռավորությունները, որոնք նշված են սույն կանոնների 142 րդ կետում մեծացնել մինչև մոտավորապես 176 տոկոսը:
Նկար 9. 50 կՎտ-ից փոքր անվանական ջերմային հզորությամբ գազի սարքերից ելուստների հեռավորության նվազեցման կամ մեծացման դիագրամ
ԳԼՈՒԽ 17. «Ց» ՏԻՊԻ ԳԱԶԻ ՍԱՐՔԵՐԻ ԵՎ «Բ13», «Բ22», «Բ23» ԵՆԹԱՏԻՊԵՐԻ ԳԱԶԻ ՍԱՐՔԵՐԻ ԾԽԱՏԱՐ ՈՒՂԻՆԵՐԸ (ԾԽԱՕԴԱՏԱՐՆԵՐԸ)
146. Այրման բաց խցով «Բ13», «Բ22», «Բ23» ենթատիպի գազի սարքերի ծխատար ուղիները և այրման փակ խցով «Ց» տիպի գազի սարքերի ուղղաձիգ ծխաօդատարները (ծխատարները) պետք է բավարարեն սույն կանոնների 14-րդ գլխի ընդհանուր պահանջները և սույն գլխի պահանջները:
147. Ծխատար և ծխաօդատար համակարգերը պետք է նախագծվեն և կառուցվեն հետևյալ պահանջների ապահովմամբ`
1) բոլոր թվարկված գազի սարքերի ծխատարները կամ ծխաօդատարները պետք է հաշվարկվեն և կառուցվեն «չոր» ռեժիմում աշխատելու պայմանով և պետք է բացառված լինի կոնդենսացիան դրանց ներքին կամ արտաքին մակերևույթների վրա.
2) «Բ13» ենթատիպի գազի սարքի ծխատարի ելքը պետք է գտնվի առավելապես քամու դիմհարի գոտուց դուրս (այլ կառույցի և տվյալ շենքի տանիքի): Եթե նշված պահանջը տեխնիկապես իրագործելի չէ, ապա սարքը կամ գազասպառման համակարգը պետք է ունենա մեթանի կոնցենտրացիայի վերահսկման ինքնաշխատ համակարգ.
3) ծխատարները և ծխաօդատարները շենքի ներսում պետք է լինեն հերմետիկ և չպետք է անցնեն ննջարաններով, սանհանգույցներով կամ այլ սեփականատերերի պատկանող որևէ տարածքով.
4) համակցված համաառանցքային ծխաօդատարի կիրառման դեպքում օդի մատուցման փողանցքը պետք է ունենա 5 հարկ և բարձր շենքերում` ոչ պակաս 90 րոպե կրակակայունության սահման, և ոչ պակաս 30 րոպե` 4 հարկից ցածր շենքերում: Առանձնացված ծխաօդատարի կիրառման դեպքում փողանցքներից յուրաքանչյուրը պետք է ունենա 5 հարկ և բարձր շենքերում` ոչ պակաս 90 րոպե կրակակայունության սահման, և ոչ պակաս 30 րոպե` 4 հարկից ցածր շենքերում.
5) ծխատարները և ծխաօդատարների համար կիրառվող նյութերը պետք է լինեն հրակայուն և կրակակայուն, կայուն լինեն կոռոզիայի նկատմամբ.
6) համակցված ծխաօդատարների գլխամասը պետք է ունենա այնպիսի կառուցվածք, որ այրման արգասիքները չներծծվեն օդի փողանցք և քամու ճնշումը լինի օդի մատուցման և այրման արգասիքների հեռացման փողանցքների վրա ճնշումից ոչ ավելի:
148. Ճնշման տակ աշխատող «Բ13», «Բ22», «Բ23» ենթատիպի գազի սարքերի այրման արգասիքների ուղու` սենքում գտնվող հատվածը պետք է փորձարկված լինի 200 Պա ճնշմամբ (թույլատրելի կորուստը` 0.006 լիտր/(վրկ.մ2) կամ գտնվի սենքից մեկուսացված անընդհատ օդափոխվող անցուղում: Սույն պահանջը տարածվում է նաև սենքի միջով անցնող «Ց» տիպի գազի սարքի ծխաօդատարների վրա: Շենքի արտաքին մասում տեղակայվող ծխաօդատարները պետք է ունենան նույն հերմետիկությունը և ամբողջ երկարությամբ և ծավալով օդափոխվեն արտաքին օդով կամ այրման համար տրվող օդով:
Նկար 10. Համառանցք ծխաօդատարի միացումը կոլեկտիվ ծխատարին
Նկար 11. Առանձնացված ծխատարի միացումը կոլեկտիվ ծխատարին
ԳԼՈՒԽ 18. ՆԵՐՏՆԱՅԻՆ ԳԱԶԱՍՊԱՌՄԱՆ ՀԱՄԱԿԱՐԳԻ ՏԵԽՆԻԿԱԿԱՆ ՍՊԱՍԱՐԿՈՒՄ
149. Մատակարարը պարտավոր է բաժանորդին մատուցել գազասպառման (բնակիչ և ԲԲՇ-ների տարածքում գործող կենցաղային սպառում ունեցող կազմակերպություններին) համակարգի տեխնիկական սպասարկման ծառայություն առնվազն մեկ անգամ հոկտեմբերի 1-ից մինչև ապրիլի 1-ն ընկած ժամանակահատվածում (1-ին հաշվարկային կիսամյակ) և առնվազն մեկ անգամ ապրիլի 1-ից մինչև հոկտեմբերի 1-ն ընկած ժամանակահատվածում (2-րդ հաշվարկային կիսամյակ) սակայն ոչ շուտ, քան 4 ամիսը մեկ անգամ պարբերականությամբ:
150. Սպասարկման ծառայության մատուցումը փաստվում է երկկողմ ստորագրությամբ (գազամատակարար-բաժանորդ) ակտով:
151. Ներտնային գազասպառման համակարգի տեխնիկական սպասարկումը ներառում է՝
1) գազատար խողովակների և գազօգտագործող սարքավորումների արտաքին զննումը, զոդակարերի, պարուրակային միացումների կիպության ստուգումը, իսկ գազի արտահոսքի դեպքում՝ դրա վերացումը.
2) գազասարքերի ծխատար խողովակների հավաքակցման, ծխատար ուղուն միացման, օդափոխության և այրման համար անհրաժեշտ օդաքանակի ներհոսքի համար նախատեսված բացվածքների զննումը, ծխատար և օդատար ուղիներում քարշի ստուգումը, որի բացակայության (խաթարված լինելու) դեպքում՝ ծխատար և օդատար ուղիների մաքրումը (մաքրումն ընդգրկում է այն բոլոր աշխատանքները, որոնք անհրաժեշտ է կատարել ծխատարի կամ օդատարի քարշն ապահովելու համար, այն է՝ մաքրել այն մեխանիկական եղանակով (ծանրոցի օգնությամբ) ինչպես նաև վերացնել ցանկացած արգելք, բացառությամբ այն դեպքերի, որոնք կապված են ծխատարի կամ օդատարի կառուցվածքային ամբողջության խաթարման հետ).
3) գազաօգտագործող սարքավորումների աշխատանքի ստուգումը՝ գործարկված վիճակում: Անհրաժեշտության դեպքում բաց այրման խցով գազօգտագործող սարքավորումների այրման պրոցեսի կարգավորումը.
4) ներտնային գազասպառման համակարգի անվտանգ օգտագործման վերաբերյալ սպասարկման պահին բնակարանում ներկա գտնվող և տվյալ հասցեում բնակվող չափահաս քաղաքացիների հրահանգավորումը:
5) այրվող գազերի ազդանշանային սարքերի և ինքնաշխատ վթարային անջատիչ կափույրի աշխատունակության ստուգումը:
ԳԼՈՒԽ 19. ԱՎՏՈՄԱՏ (ԻՆՔՆԱՇԽԱՏ) ԱՆՎՏԱՆԳՈՒԹՅԱՆ ՀԱՄԱԿԱՐԳԻՆ ՆԵՐԿԱՅԱՑՎՈՂ ՊԱՀԱՆՋՆԵՐԸ
152. Բնակելի շենքերում, առանձնատներում և այլ գազասպառման օբյեկտներում անվտանգության համակարգի ներդրման նպատակն է ապահովել Հայաստանի Հանրապետության անվթար գազասպառումը և նվազագույնին հասցնել տեխնածին վթարների քանակը:
Հայաստանի Հանրապետության կառավարության 2007 թվականի փետրվարի 22-ի N 314-Ն և 2008 թվականի հունվարի 31-ի N 330-Ն գազասպառման համակարգում անվտանգության մակարդակի բարձրացման մասին որոշումների համաձայն՝ իրականացվում է բնակելի տների, ԲԲՇ բնակարանների և առանձնատների ու այլ կենցաղային սպառում ունեցող գազասպառող կազմակերպությունների գազաֆիկացման և գազամատակարարման վերականգման ժամանակ անվտանգության համակարգի տեղադրում:
153. Գազազգայուն սարքերի վրա անվտանգության համակարգը նախատեսված է սենքերի (շինություններում) ածխածնի մոնօքսիդի (շմոլ գազի) և բնական գազի պարունակությունները, ինչպես նաև միջավայրի ջերմաստիճանն ահազանգման սահմաններին հասնելու դեպքում լուսային և ձայնային ազդանշանի միջոցով իրազեկելու և գազի մատակարարումը վթարային անջատիչ կափույրի միջոցով դադարեցնելու համար:
154. ԱԱՀ հավաքակցման ժամանակ անհրաժեշտ է օգտագործել համապատասխանության գնահատման փաստաթուղթ ունեցող սարքեր, խողովակներ և այլ օժանդակ պարագաներ:
155. Անվտագության համակարգը տեղադրվում է ցածր ճնշման ներքին գազատարների վրա:
156. Անվտանգության համակարգի տեղադրման ժամանակ հարկավոր է հաշվի առնել հետևյալ պահանջները՝
1) ազդանշանիչը տեղադրել պատի վրա գազի կուտակման ամենահավանական տեղում.
2) ազդանշանիչը պետք է միացնել էլեկտրական ցանցին՝ խրոցով անհատական վարդակի միջոցով.
3) անջատիչ կափույրը պետք է տեղադրել գազի հաշվիչից հետո.
4) սենքերում (շինություններում) երկու ազանշանիչի տեղադրման դեպքում դրանց միջև հորիզոնական հեռավորությունը պետք է լինի 7.0 մետրից ոչ ավելի.
5) չի թույլատրվում ազդանշանիչը տեղադրել գազօջախների, օդափոխության վանդակացանցերի մոտ, պայթյունավտանգ և գոլորշու մեծ քանակություն պարունակող սենքերում (շինություններում), միջանցիկ քամիների ազդեցության գոտում.
6) ազդանշանիչը հարկավոր է տեղադրել կրակի օջախից 1.5 մետրից ոչ մոտ և 8.0 մետրից ոչ ավելի հեռավորության վրա:
157. Անվտագության համակարգի հավաքակցումը պետք է իրականացվի ըստ նախագծային կազմակերպությունների կողմից մշակված նախագծերի (էսքիզների)՝ համապատասխան ուսուցում անցած, այդ աշխատանքների առանձնահատկություններին ու նրանց կատարման տեխնոլոգիային տիրապետող տեխնիկական անձնակազմի միջոցով:
158. Ձայնային ազդանշանիչները ամրացվում են պատին: Առաստաղից մինչև ազդանշանիչի ստորին մասի հեռավորությունը պետք է լինի առավելագույնը 0.3 մետր:
159. Վթարային անջատիչ կափույրի հավաքակցման ժամանակ պետք է կափույրը տեղադրել գազատարի հորիզոնական կամ ուղղաձիգ տեղամասերում այնպես, որ գազի շարժման ուղղությունը համընկնի կափույրի իրանի վրա նշված սլաքի ուղղության հետ: Արգելվում է կափույրը տեղադրել հորիզոնական տեղամասերում գլխիվայր:
160. Վթարային անջատիչ կափույրը տեղադրվում է գազի հաշվիչից հետո:
161. ԱԱՀ տեխնիկական սպասարկումն իրականացվում է տարին մեկ անգամ, որի ժամանակ ստուգվում են՝
ա. գազատարի և կափույրի հերմետիկությունը.
բ. ազդանշանիչի և կափույրի աշխատունակությունը.
1) գազատարի և կափույրի իրանի հերմետիկությունը ստուգվում է այրիչներից առաջ տեղադրված խցանային փականների՝ փակ, իսկ գազատարի փականի և կափույրի բաց վիճակներում: Ստուգումն իրականացվում է օճառի էմուլսիայի կամ հոսաորոնիչի օգնությամբ.
2) ազդանշանիչի աշխատունակության ստուգումն իրականացվում է գազատարի փականի և կափույրի բաց վիճակներում: Ստուգումն իրականացվում է հետևյալ հաջորդականությամբ՝
ա. վառել այրիչներից որևէ մեկը.
բ. սեղմել ազդանշանիչի ինքնաթեստավորման (Test) կոճակը: Այդ դեպքում գործարկվում են լուսային և ձայնային ազդանշանները, փակվում է վթարային անջատիչ կափույրը: Այրիչում դադարում է այրման պրոցեսը.
գ. այնուհետև անհրաժեշտ է փակել գազասարքի փակաները և բացել կափույրը.
3) տեսողական ստուգվում է սարքի իրանի վնասվածքի բացակայությունը և ցանցային վարդակում հպակների (կոնցենտրատների) միացման հուսալիությունը:
162. ԱԱՀ սպասարկման աշխատանքները կազմակերպվում և իրականացվում են կազմակերպության ստանդարտի (ԿՍ) պահանջներին համապատասխան:
163. ԱԱՀ-ների տեխնիկական սպասարկմանն ու նորոգմանը ներկայացվող հիմնական պահանջներ.
1) ազդանշանիչների և անջատիչ կափույրների տեխնիկական սպասարկումներն ու նորոգումներն իրականացվում են մասնագիտացված կազմակերպությունների կողմից.
2) մասնագիտացված կազմակերպությունները պետք է հագեցված լինեն համապատասխան ստենդային սարքավորումներով և պահեստային մասերով.
|
Հայաստանի Հանրապետության վարչապետի աշխատակազմի ղեկավար |
Ա. Հարությունյան |
|
17.04.2023 ՀԱՎԱՍՏՎԱԾ Է ԷԼԵԿՏՐՈՆԱՅԻՆ ՍՏՈՐԱԳՐՈՒԹՅԱՄԲ |
Պաշտոնական հրապարակման օրը՝ 17 ապրիլի 2023 թվական: